
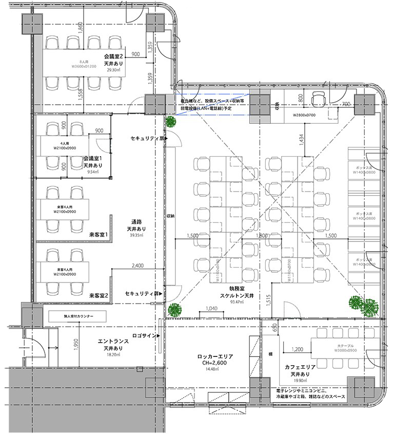
港区芝3丁目にセットアップオフィスが誕生いたしました!(2024年10月、貸室内リニューアル工事完了)都営三田線【芝公園駅】徒歩1分、都営三田線【三田駅】徒歩5分、都営大江戸線【赤羽橋駅】徒歩7分の場所に位置し、社員の方の通勤や営業の出入りがしやすい立地です。執務室には20名が使用できる机、椅子が設置されているほか、4名掛けのボックス席も3セット付帯がございます。また、会議室等の内装造作も施されているため、入居までの内装造作工事期間や費用を削減、ご入居までにかかる手間を出来る限り省く事で本業に専念いただくことができます。会議室は4名用が3室、8名用が1室と計4室ございますので、社外のお客様との商談はもちろん、社内のお打ち合わせや休憩スペースとしてもご利用いただけます。港区にて65坪前後のセットアップオフィスをお探しの企業様、イニシャルコストを抑えたいご意向の企業様、ぜひ一度ご内見くださいませ。ご連絡お待ちしております。
※掲載レイアウト図面とお引渡し状態が異なる場合がございます。その場合は現況を優先させていただきます。
OVERVIEW
- 物件No.
- 2-3323
- 募集期間
- ご成約まで
- 所在地
- 港区芝
- 最寄駅
-
東京都交通局三田線
芝公園駅 徒歩1分
東京都交通局三田線
三田駅 徒歩5分
東京都交通局大江戸線
赤羽橋駅 徒歩7分
- 面積
- 67.83坪 / 224.24㎡
- 会議室
- 4名掛け会議室×3
8名掛け会議室×1
- 推奨人数
- 20~30人
- 構造
- 鉄骨鉄筋コンクリート造
- 規模
- 地下1階付8階建
- 施工
- 1991年
- エレベーター
- 2基
- 天井の高さ
- 2,600mm
- 空調
- セントラル
- トイレ
- 共用 男女別 洋式
- 床仕様
- OAフロア(H=50mm)
- 賃料
- ご相談
- 共益費
- 賃料に含む
- 預託金
- 賃料の12ヶ月分
- 契約期間
- ―
- 引き渡し時期
- 即日
- その他
- 再契約料:無/ 償却:無/ 礼金:無/ 契約形態:定期建物賃貸借契約/ 契約期間:年相談/
現在オンライン内覧が可能です
オンライン内覧について詳しくはこちら
CHECK IT!
この物件についてもっと詳しく
そのまんまオフィス会員
3つのメリット
-

物件の
詳細情報の公開 -

新着物件を
お知らせ -

未公開物件を
ご紹介
おすすめ物件
-
CAN RENT
NEW
【2-3712 Biz Feel 浜松町・原状回復工事・仲介手数料不要】JR浜松町駅徒歩3分!第一京浜沿いに所在する明るい立地にコンパクトセットアップオフィスが登場!
港区浜松町
14.82坪(49㎡)
会員限定
-
CAN RENT
【No.2-3579 NOVEL WORK Shibadaimon/仲介手数料不要!】大門駅徒歩4分、18坪の築浅フルセットアップオフィス!『原状回復・預託金不要』フル什器付・テレカンブース1基・無料Wi-Fi完備!
港区芝大門
18.55坪(61.33㎡)
会員限定
-
CAN RENT
自由自在なワークスタイルを~新橋85坪フルセットアップオフィス~
港区新橋
85.72坪(283.38㎡)


















