
東日本橋エリアに位置する駅至近の物件です。東日本橋交差点目の前、清杉通り沿いの視認性に優れたビルとなっており、窓からの開放感もしっかりと確保されています。重厚感のあるエントランスを通ると、2021年3月にリニューアルした綺麗なエレベーターが皆様を迎えます。トイレも執務スペースからは隔離されておりますので導線を気にせず自由度の高い設計が可能です。8名想定の会議室は、モニタ等を設置しても余裕をもってお使いいただける広さがございます。また、エレベーターホールにつながる倉庫スペースのご用意もあり、ロッカールーム等としての利用も可能です。水回りも2025年アクセスに関しても都営浅草線【東日本橋駅】のB2出口まで徒歩1分となっており、そこから地下通路で都営新宿線【馬喰横山駅】、JR総武線快速【馬喰町駅】もご利用可能となっております。内覧も事前調整の上で可能となっておりますので、お気軽にお問い合わせくださいませ!
※お引渡し状態は現状を優先とさせていただきます。
OVERVIEW
- 物件No.
- 2-3422
- 募集期間
- ご成約まで
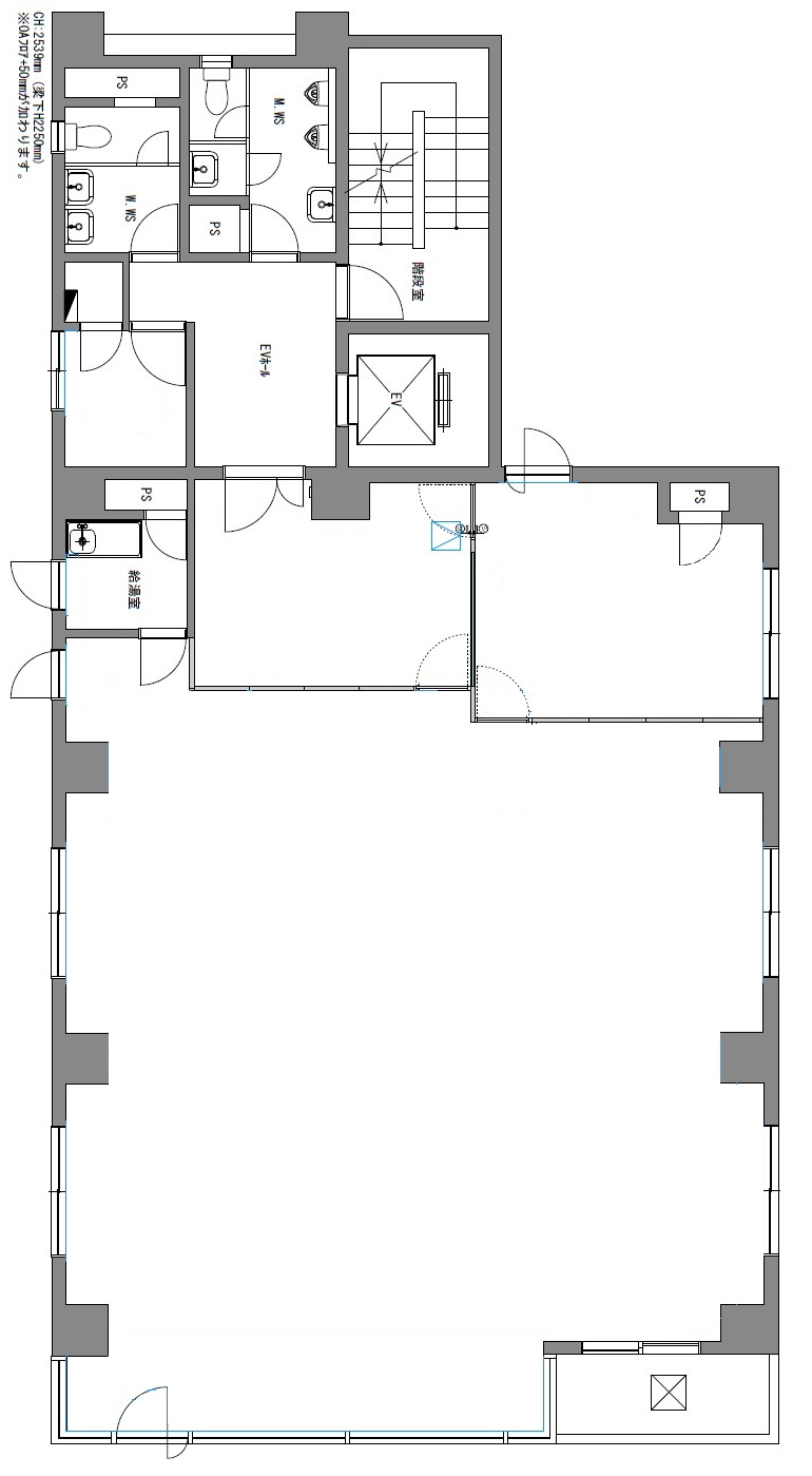
- 所在地
- 中央区東日本橋
- 最寄駅
-
東京都交通局浅草線
東日本橋駅 徒歩1分
東京都交通局新宿線
馬喰横山駅 徒歩1分
JR総武線快速
馬喰町駅 徒歩1分
- 面積
- 58坪 / 191.73㎡
- 会議室
- 8名掛け会議室×1
- 推奨人数
- 26~32人
- 構造
- 鉄骨鉄筋コンクリート造
- 規模
- 10階
- 施工
- 1986年
- エレベーター
- 1基(13人乗)
- 天井の高さ
- ―
- 空調
- 個別空調
- トイレ
- 専用 男女別 洋式
- 床使用
- OAフロア
- 賃料
- 1,044,000円
- 共益費
- 賃料に含む
- 預託金
- 賃料の6ヶ月分
- 契約期間
- 2年
- 引き渡し時期
- 即日
- その他
- 更新料:新賃料の1ヶ月分/ 償却:無/ 礼金:無/ 契約形態:普通賃貸借契約/ その他:SFビルサポート株式会社と保証委託契約を締結していただきます。※与信状況によって預託金額が変動する場合がございます。/
360°CAMERA
現在オンライン内覧が可能です
オンライン内覧について詳しくはこちら
CHECK IT!
この物件についてもっと詳しく
そのまんまオフィス会員
3つのメリット
-

物件の
詳細情報の公開 -

新着物件を
お知らせ -

未公開物件を
ご紹介
おすすめ物件
-
CLOSE
【No.2-3388 Biz Feel Ginza East/仲介手数料不要・原状回復義務なし】2フロア65.16坪!中央区のデザイナーズオフィス!24名用執務室什器付、6名用会議室什器付!
中央区新富
65.16坪(215.46㎡)
-
CAN RENT
NEW
【中央区・人形町エリア】創造性を引き出す、開放感と機能的な空間~敷金ゼロ相談が可能なハーフセットアップオフィス(一部什器付き物件)~
中央区日本橋富沢町
55.95坪(184.96㎡)
-
NEGOTIATION
茅場町駅前!敷金・原状回復無し、オールインクルーシブのデザインオフィス!
中央区日本橋茅場町
36.05坪(119.18㎡)










