
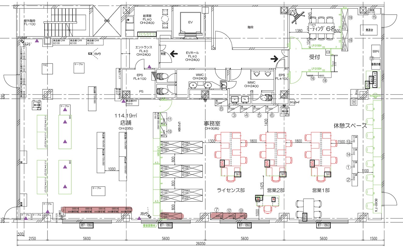
基準階約114坪の大型物件で居抜きオフィスが登場しました。当該物件は隅田川沿いに立地し、周辺は落ち着いた雰囲気のエリアです。付近にはオフィスビルが立ち並び、ビジネスには最適。江戸通り方面には飲食店やコンビニもありますので、ランチにも困りません。最寄りの駅は都営浅草線、JR中央線・総武線各駅停車【浅草橋駅】徒歩4分程度の立地です。その他にJR総武線快速【馬喰町駅】、都営新宿線【馬喰横山駅】、都営浅草線【東日本橋駅】も利用可能です。貸室内は、エレベーターを降りると左右どちらからでも室内に入室することが出来るため、一方は来客用の受付兼入口、もう一方は従業員用入口と分けて利用可能です。効率良いレイアウトが組みやすい貸室は、様々な業種にマッチする内装となっています。ぜひ一度ご内見くださいませ。
※お引渡し状態は現況を優先させていただきます。
OVERVIEW
- 物件No.
- 2-3529
- 募集期間
- ご相談
- 所在地
- 台東区柳橋
- 最寄駅
-
JR中央線・総武線各駅停車
浅草橋駅 徒歩4分
東京都交通局浅草線
浅草橋駅 徒歩4分
東京都交通局新宿線
馬喰横山駅 徒歩5分
- 面積
- 106.8坪 / 353.06㎡
- 会議室
- 6名掛け会議室×1
- 推奨人数
- 45~50人
- 構造
- 鉄骨鉄筋コンクリート造
- 規模
- 地下1階付6階建
- 施工
- 1988年
- エレベーター
- 1基
- 天井の高さ
- 3,060mm(梁下2,560mm)
- 空調
- 個別空調
- トイレ
- 専用 男女別 洋式
- 床使用
- OAフロア(H=50mm)
- 賃料
- ご相談
- 共益費
- 賃料に含む
- 預託金
- ご相談
- 契約期間
- 2年
- 引き渡し時期
- ご相談
- その他
- 更新料:無/ 償却:無/ 礼金:無/ 契約形態:普通賃貸借契約/ その他:契約の際には、貸主指定の保証会社と保証委託契約を締結していただきます。/
現在オンライン内覧が可能です
オンライン内覧について詳しくはこちら
CHECK IT!
この物件についてもっと詳しく
そのまんまオフィス会員
3つのメリット
-

物件の
詳細情報の公開 -

新着物件を
お知らせ -

未公開物件を
ご紹介









