
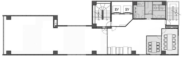
当ビルは、大通り沿いの視認性の良い場所に所在しています。近隣には、コンビニや郵便局、スーパーなど、近くにあると有難い施設がとり揃っています。ビルの1階エントランスは、白を基調とした明るいリニューアルを施しています。(2021年12月、エントランス・EVホールリニューアル工事実施済)エレベーターが2基あるのも嬉しいポイント。貸室内も、水回りを含めリニューアル工事を実施しています。(2022年12月、セットアップ化工事実施済)木目を用いたぬくもりのあるデザインが特徴です。室内には、受付・会議室の間仕切りをあらかじめ設置。会議室は、8名掛けと6名掛けの2つを準備しているので、人数の多い打ち合わせがある企業様にもおすすめです。是非一度現地をご覧くださいませ。
※掲載内容と現況が異なる場合は現況を優先させていただきます。
OVERVIEW
- 物件No.
- 2-3593
- 募集期間
- ご成約まで
- 所在地
- 中央区東日本橋
- 最寄駅
-
東京都交通局浅草線
東日本橋駅 徒歩2分
東京都交通局新宿線
馬喰横山駅 徒歩2分
JR総武線快速
馬喰町駅 徒歩2分
- 面積
- 68.93坪 / 227.9㎡
- 会議室
- 8名掛け会議室×1
6名掛け会議室×1
- 推奨人数
- 25~30人
- 構造
- SRC造・RC造
- 規模
- 地下1階付9階建
- 施工
- 1987年
- エレベーター
- 2基
- 天井の高さ
- ―
- 空調
- 個別空調
- トイレ
- 専用 男女別 洋式
- 床使用
- ―
- 賃料
- 1,654,320円
- 共益費
- 賃料に含む
- 預託金
- ご相談
- 契約期間
- ―
- 引き渡し時期
- 2026年1月上旬予定
- その他
- 再契約料:無/ 償却:無/ 礼金:無/ 契約形態:定期建物賃貸借契約/ 契約期間:年相談/ その他:貸主指定の保証会社と保証委託契約を締結していただくことで敷金無で入居することができます。/
現在オンライン内覧が可能です
オンライン内覧について詳しくはこちら
CHECK IT!
この物件についてもっと詳しく
そのまんまオフィス会員
3つのメリット
-

物件の
詳細情報の公開 -

新着物件を
お知らせ -

未公開物件を
ご紹介








