
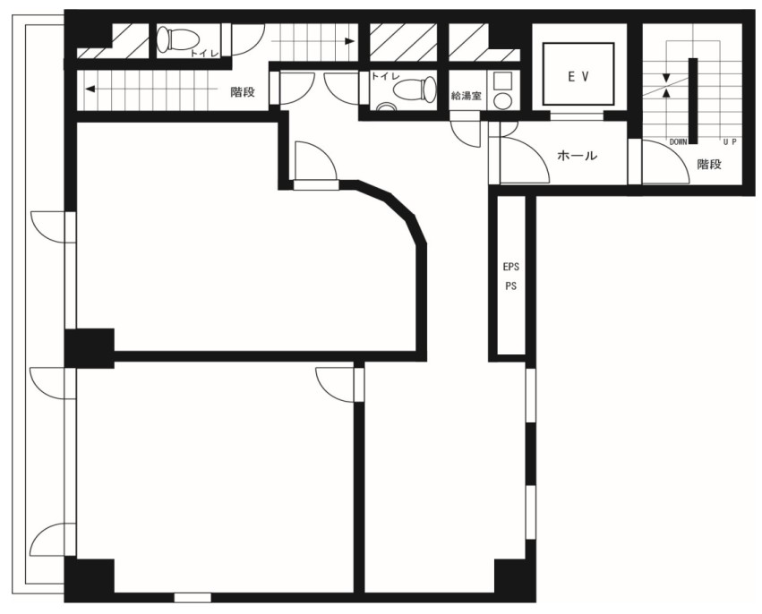
東京メトロ日比谷線【秋葉原駅】まで徒歩8分の立地に、居抜きオフィスが募集開始しました!JR中央線・総武線各駅停車、都営浅草線が利用可能な【浅草橋駅】も徒歩圏内で、空港等へのアクセスも良好です!執務室内は3つの空間に分かれており、会議室や応接スペース等、テナント様毎に様々な用途で利用可能です。移転の際の大きなご負担となる内装工事を大幅に削減することが可能です!トイレもエレベーターホール側に設置してあり、来客のあるテナント様でも違和感なく利用いただける配置となっております。また、開口部には幅の広いバルコニーも備えており、業務中のちょっとした息抜きにもピッタリです!是非一度、ご覧いただけますと幸いです。
※掲載内容と現況が異なる場合は現況を優先させていただきます。
OVERVIEW
- 物件No.
- 2-3627
- 募集期間
- ご成約まで
- 所在地
- 台東区台東
- 最寄駅
-
東京メトロ日比谷線
秋葉原駅 徒歩8分
JR中央線・総武線各駅停車
秋葉原駅 徒歩9分
JR山手線
秋葉原駅 徒歩9分
- 面積
- 27.3坪 / 90.32㎡
- 会議室
- ―
- 推奨人数
- 12~15人
- 構造
- 鉄骨鉄筋コンクリート造
- 規模
- 7階建
- 施工
- 1983年
- エレベーター
- 1基
- 天井の高さ
- ー
- 空調
- 個別空調
- トイレ
- 専用 男女共用 洋式
- 床使用
- ―
- 賃料
- 327,600円
- 共益費
- 53,589円
- 預託金
- 賃料の4ヶ月分
- 契約期間
- 2年
- 引き渡し時期
- ご相談
- その他
- 再契約料:新賃料の1ヶ月分/ 償却:無/ 礼金:賃料の2ヶ月分/ 契約形態:定期建物賃貸借契約/ その他:契約の際には、貸主指定の保証委託契約を締結していただきます。/
現在オンライン内覧が可能です
オンライン内覧について詳しくはこちら
CHECK IT!
この物件についてもっと詳しく
そのまんまオフィス会員
3つのメリット
-

物件の
詳細情報の公開 -

新着物件を
お知らせ -

未公開物件を
ご紹介









