
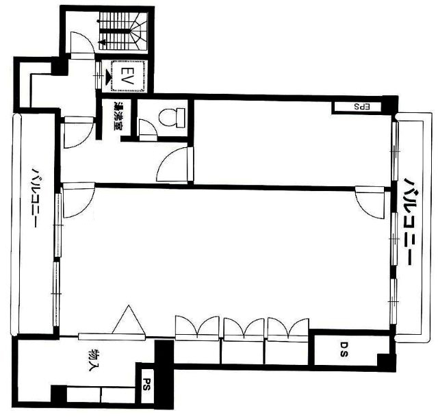
東京メトロ千代田線「赤坂駅」まで徒歩5分、「乃木坂駅」まで徒歩6分と、利便性の高い立地です。赤坂通りに面している為、従業員様の通勤やお取引先のご来社にも便利なロケーションです。周辺には飲食店も多数あり、充実したランチ環境です。当物件最大の特徴は、執務室の壁一面がホワイトボード仕様になっている点です。アイデア出しやチームミーティング、プロジェクト管理など、クリエイティブな業務に最適な空間です。さらに、収納棚も備え付けられており、購入する費用と手間を節約できます。貸室内は、執務室と会議室1室という構成です。エレベーター不停止が導入されており、セキュリティ面も安心。お客様で什器を入れて頂ければすぐにご利用頂ける為、分室やプロジェクト単位での使い方にもおススメです。是非お早めにご内覧くださいませ!
※掲載内容と現況が異なる場合は現況を優先させていただきます。
OVERVIEW
- 物件No.
- 2-3638
- 募集期間
- ご成約まで
- 所在地
- 港区赤坂
- 最寄駅
-
東京メトロ千代田線
赤坂駅 徒歩5分
東京メトロ千代田線
乃木坂駅 徒歩6分
東京メトロ日比谷線
六本木益徒歩10分
- 面積
- 31.9坪 / 105.46㎡
- 会議室
- 6名掛け会議室×1
- 推奨人数
- 10~15人
- 構造
- 鉄骨鉄筋コンクリート造
- 規模
- 地下1階付9階建
- 施工
- 1988年
- エレベーター
- 1基
- 天井の高さ
- 2,400mm
- 空調
- 個別空調
- トイレ
- 専用 男女共用 洋式
- 床使用
- タイルカーペット
- 賃料
- 510,400円
- 共益費
- 143,550円
- 預託金
- 賃料の6ヶ月分
- 契約期間
- 2年
- 引き渡し時期
- 即日
- その他
- 更新料:新賃料の1ヶ月分/ 償却:無/ 礼金:賃料の1ヶ月分/ 契約形態:普通賃貸借契約/ その他:契約の際には、貸主指定の保証会社と保証委託契約を締結していただきます。/
現在オンライン内覧が可能です
オンライン内覧について詳しくはこちら
CHECK IT!
この物件についてもっと詳しく
そのまんまオフィス会員
3つのメリット
-

物件の
詳細情報の公開 -

新着物件を
お知らせ -

未公開物件を
ご紹介

















