
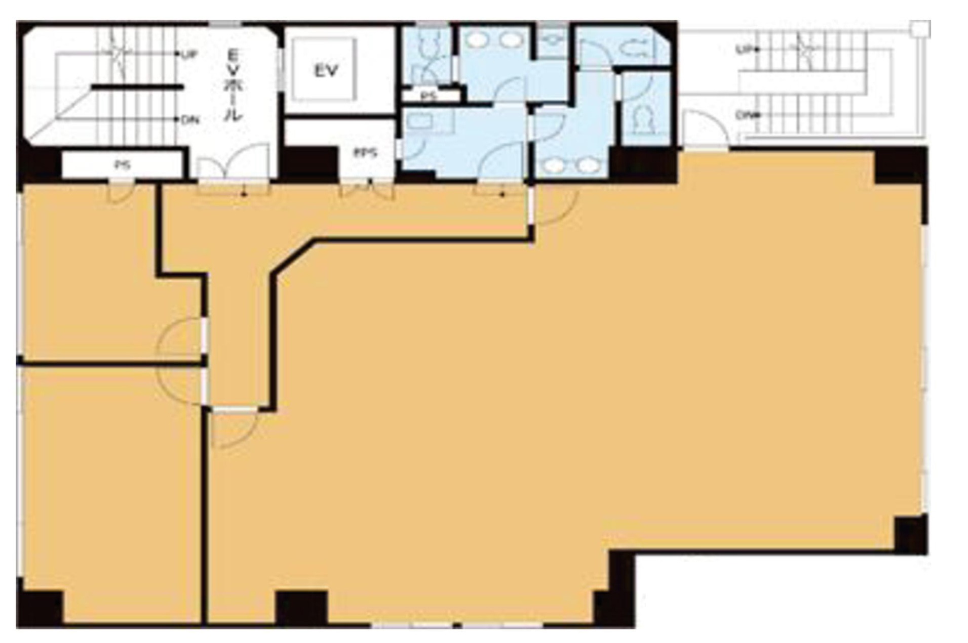
外壁やエントランスに高級感のある落ち着いた色調を採用し、ビジネスの拠点としてふさわしい品格を備えています。屋上にはウッドデッキ付きのテナント専用スペースがあり、リフレッシュやコミュニケーションの場としてもご活用いただけます。約54坪の広々としたフロアは、個別空調やOAフロア、男女別トイレなど、快適にお過ごしいただけるオフィス環境を整えています。開放感があり、レイアウトの自由度も高いです。アクセス面も非常に優れており、東京メトロ日比谷線・東西線【茅場町駅】まで徒歩5分、JR京葉線・日比谷線【八丁堀駅】まで徒歩7分、半蔵門線【水天宮前駅】も徒歩7分と複数路線が利用可能です。周辺にはコンビニや飲食店も充実しており、働く方々にとって便利な立地です。今回は、前テナント様の造作を残した状態、居抜きオフィスとしての募集となります。募集期限は2025年10月31日までですので、ぜひお早めにご検討ください。
※掲載内容とお引渡し状態が異なる場合は現況を優先させていただきます。
OVERVIEW
- 物件No.
- 2-3657
- 募集期間
- 2025年10月31日まで
- 所在地
- 中央区新川
- 最寄駅
-
東京メトロ東西線
茅場町駅 徒歩5分
東京メトロ日比谷線
茅場町駅 徒歩5分
JR京葉線
八丁堀駅 徒歩7分
- 面積
- 54.93坪 / 181.59㎡
- 会議室
- 6名掛け会議室×1
10名掛け会議室×1
- 推奨人数
- 20~25人
- 構造
- SRC造・RC造
- 規模
- 9階建
- 施工
- 1986年
- エレベーター
- 1基(11人乗)
- 天井の高さ
- 2,490mm
- 空調
- 個別空調
- トイレ
- 専用 男女別 洋式
- 床使用
- OAフロア
- 賃料
- ご相談
- 共益費
- 賃料に含む
- 預託金
- 賃料の5ヶ月分
- 契約期間
- 2年
- 引き渡し時期
- ご相談
- その他
- 更新料:新賃料の1ヶ月分/ 償却:無/ 礼金:賃料の1ヶ月分/ 契約形態:普通賃貸借契約/ その他:契約の際には、貸主指定の保証会社と保証委託契約を締結していただきます。/
現在オンライン内覧が可能です
オンライン内覧について詳しくはこちら
CHECK IT!
この物件についてもっと詳しく
そのまんまオフィス会員
3つのメリット
-

物件の
詳細情報の公開 -

新着物件を
お知らせ -

未公開物件を
ご紹介









