
本物件は、都営新宿線および東京メトロ南北線「市ヶ谷」駅より徒歩6分の立地にあり、都心への優れたアクセス環境を備えております。周辺には靖国神社をはじめ、飲食店やコンビニエンスストアが点在しており、働く方々にとって利便性と落ち着きのある環境が整っております。2016年10月には、エントランスおよび外壁のリニューアル工事を実施。歴史と格式を感じさせる街並みの趣を建物に取り入れ、落ち着きと高級感を兼ね備えたデザインへと生まれ変わりました。室内には受付スペースおよびガラスパーテーション付きの会議室を設置しており、入居後すぐに業務を開始いただける仕様となっております。また、ガラスイメージを踏襲した壁面デザインや、高級感のある大理石の使用により、建物全体に統一感と品格をもたらしており、内外装ともにモノトーンを基調とした、スタイリッシュかつ清潔感のある仕上がりとなっております。ご質問や内覧のご希望がございましたら、どうぞお気軽にお問い合わせください。
※掲載内容とお引渡し状態が異なる場合は現況を優先させていただきます。
OVERVIEW
- 物件No.
- 2-3674
- 募集期間
- ご成約まで
- 所在地
- 千代田区九段南
- 最寄駅
-
中央線・総武線各駅停車
市ヶ谷駅 徒歩8分
東京都交通局新宿線
市ヶ谷駅 徒歩6分
東京メトロ南北線
市ヶ谷駅 徒歩6分
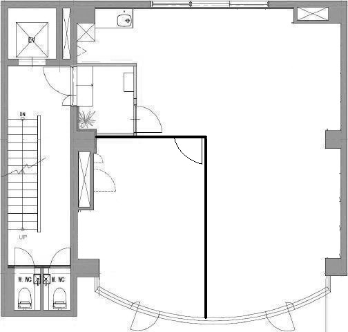
- 面積
- 25.2坪 / 83.3㎡
- 会議室
- 6名掛け会議室×1
- 推奨人数
- 8~10人
- 構造
- 鉄筋コンクリート造
- 規模
- 5階建
- 施工
- 1987年
- エレベーター
- 1基(4人乗)
- 天井の高さ
- 2,400mm
- 空調
- 個別空調
- トイレ
- 共用 男女別 洋式
- 床使用
- OAフロア(H=50mm)
- 賃料
- 478,800円
- 共益費
- 賃料に含む
- 預託金
- 賃料の4ヶ月分
- 契約期間
- 2年
- 引き渡し時期
- 2025年1月5日予定
- その他
- 更新料:新賃料の1ヶ月分/ 償却:無/ 礼金:無/ 契約形態:普通賃貸借契約/ その他:契約の際には、SFビルサポート株式会社と保証委託契約を締結していただきます。※与信状況によって預託金額が変動する場合がございます。/
現在オンライン内覧が可能です
オンライン内覧について詳しくはこちら
CHECK IT!
この物件についてもっと詳しく
そのまんまオフィス会員
3つのメリット
-

物件の
詳細情報の公開 -

新着物件を
お知らせ -

未公開物件を
ご紹介









