
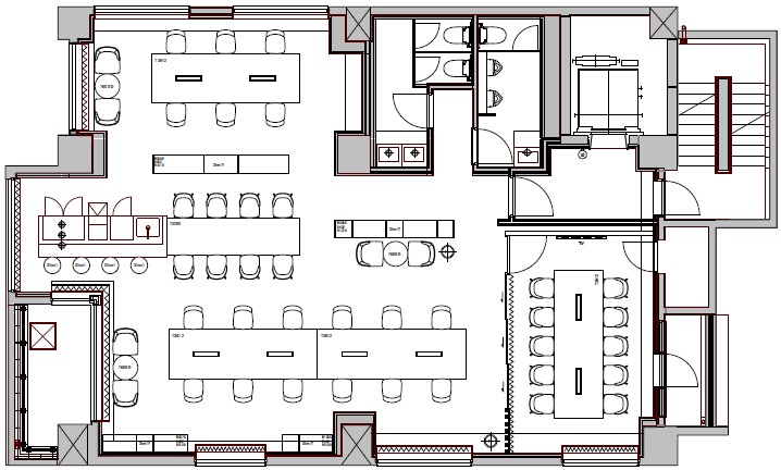
「本の街」神保町エリアに、2025年12月竣工の新築オフィスビルにセットアップオフィスが誕生!都営新宿線【小川町駅】・東京メトロ千代田線【新御茶ノ水駅】まで徒歩6分、東京メトロ半蔵門線・都営三田線【神保町駅】まで徒歩7分と、複数路線が利用可能な交通アクセスに優れた立地です。1階には入居者限定のシェアラウンジがあり、来客対応に便利な会議室も併設されています(※1)。8階にはルーフトップスペースを設けており、業務の合間にリフレッシュできる環境も整っています。貸室には10名用の会議室を造作し、会議室内にテーブルと椅子を設置。執務室にもオフィス什器(デスク・椅子)を設置しており、18~26名での利用を推奨しています。「オフィス=リビング」をコンセプトに、ナチュラルな家具や間接照明を積極的に取り入れ、自宅のリビングのような温かみのある空間を演出します。さらに原状回復義務なし(※2)で、退去時のコストを抑えられる点も魅力です。ご案内可能ですので、ぜひお気軽にお問い合わせください!
※掲載内容とお引渡し状態が異なる場合は現況を優先させていただきます。
※1:1階シェアラウンジは貸切利用・会議室利用ともに要予約
※2:現状変更や破損等を除く。契約時に別途クリーニング費用が発生します。
photographer:星野佑
OVERVIEW
- 物件No.
- 2-3705
- 募集期間
- ご成約まで
- 所在地
- 千代田区神田錦町
- 最寄駅
-
東京都交通局新宿線
小川町駅 徒歩6分
東京メトロ千代田線
新御茶ノ水駅 徒歩6分
東京メトロ半蔵門線
神保町駅 徒歩7分
- 面積
- 42.99坪 / 142.11㎡
- 会議室
- 10名掛け会議室×1
- 推奨人数
- 18~26人
- 構造
- 鉄筋コンクリート造
- 規模
- 8階建
- 施工
- 2025年
- エレベーター
- 1基(11人乗)
- 天井の高さ
- 3,000mm
- 空調
- 個別空調
- トイレ
- 専用 男女別 洋式
- 床仕様
- OAフロア
- 賃料
- 1,418,670円
- 共益費
- 賃料に含む
- 預託金
- 賃料の2ヶ月分
- 契約期間
- 2年
- 引き渡し時期
- 即日
- その他
- 更新料:無/ 償却:無/ 礼金:無/ 契約形態:普通賃貸借契約/ その他:原状回復義務なし(現状変更した場合や破損等を除く)/クリーニング費用をご負担いただきます。(契約時)/貸主指定の保証会社と保証委託契約を締結していただきます。/
360°CAMERA
現在オンライン内覧が可能です
オンライン内覧について詳しくはこちら
CHECK IT!
この物件についてもっと詳しく
そのまんまオフィス会員
3つのメリット
-

物件の
詳細情報の公開 -

新着物件を
お知らせ -

未公開物件を
ご紹介
おすすめ物件
-
CAN RENT
【2-3878 THE GATE Otemachi/仲介手数料・原状回復不要】「大手町駅」が利用可能な什器付きセットアップオフィス!
千代田区内神田
25.17坪(83.22㎡)
会員限定
-
CLOSE
【No.2-3559 NOVEL WORK AKIHABARA/仲介手数料不要】秋葉原エリアにフル什器付きセットアップオフィス誕生!
千代田区神田佐久間町
26.97坪(89.16㎡)
会員限定
-
CAN RENT
【原状回復不要】2025年12月竣工神保町エリアの新築オフィスビル!分割区画のセットアップオフィス(共用ラウンジ、屋上テラス利用可)を募集中
千代田区神田錦町
16.57坪(54.78㎡)


















