
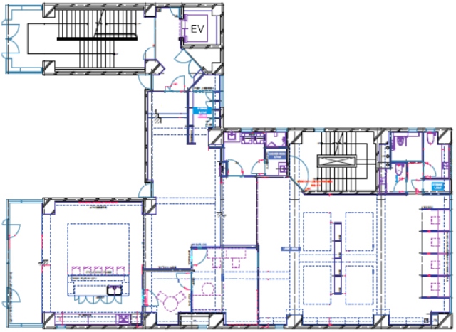
東京メトロ丸ノ内線【新宿御苑前駅】徒歩1分の立地にデザイナーズオフィスが登場しました!その他のアクセスは東京メトロ副都心線【新宿三丁目駅】、JR山手線【新宿駅】も徒歩圏内と利便性の良い場所に位置しております。貸室内は受付を抜けると右側にラウンジスペース、左側に執務スペースが広がっており、ONとOFFを切り替えやすいレイアウトになっております!ラウンジスペースには大きなキッチンを設けており単なる休憩スペースとしてだけでなく様々な使い方が想定されます。執務スペースには集中ブースや棚を標準で設置しており、レイアウトの作りやすい構造になっております。また、多機能トイレも設置しておりますため働く方を選ばない区画です!是非一度ご覧ください!
※掲載内容とお引渡し状態が異なる場合は現況を優先させていただきます。
OVERVIEW
- 物件No.
- 2-3710
- 募集期間
- ご成約まで
- 所在地
- 新宿区新宿
- 最寄駅
-
東京メトロ丸ノ内線
新宿御苑前駅 徒歩1分
東京メトロ副都心線
新宿三丁目駅 徒歩8分
JR山手線
新宿駅 徒歩14分
- 面積
- 87.92坪 / 290.65㎡
- 会議室
- 2名掛け個室×1
4名掛け個室×1
- 推奨人数
- 35~40人
- 構造
- SRC造、一部RC造
- 規模
- 地下2階付6階建
- 施工
- 1985年
- エレベーター
- 1基(13人乗)
- 天井の高さ
- ―
- 空調
- 個別空調
- トイレ
- 専用 男女別 洋式
- 床使用
- OAフロア
- 賃料
- 2,198,000円
- 共益費
- 賃料に含む
- 預託金
- 賃料の8ヶ月分
- 契約期間
- 3年
- 引き渡し時期
- 2026年4月予定
- その他
- 再契約料:無/ 償却:無/ 礼金:無/ 契約形態:定期建物賃貸借契約/ その他:契約の際には、貸主指定の保証会社と保証委託契約を締結していただきます。※与信状況によって預託金額が変動する場合がございます。また、与信状況に応じて減額のご相談も可能です。/
現在オンライン内覧が可能です
オンライン内覧について詳しくはこちら
CHECK IT!
この物件についてもっと詳しく
そのまんまオフィス会員
3つのメリット
-

物件の
詳細情報の公開 -

新着物件を
お知らせ -

未公開物件を
ご紹介











