
亀戸駅から徒歩4分、大通り沿いの角地に位置する当ビルは、全面ガラス張りの外観がとても印象的なオフィスビルです。視認性も抜群なので、来客の方にもすぐに見つけていただけます。今回ご紹介するのは、居抜きでのお引き渡しが相談可能なので、レイアウトや設備を活かして、通常のオフィス移転よりもスムーズに且つ費用を抑えてオフィスのご利用をスタートいただけます。もちろん、個別空調で24時間いつでも快適にお使いいただけますし、セキュリティカードで24時間入退室も可能です。エントランスやエレベーターホールも広々としていて、来客対応や社内の動線もスムーズ。共用部も清潔感があり、OAフロアや天井高2,700mmなど、働きやすい環境が整っています。亀戸駅北口からすぐの立地で、周辺にはコンビニや飲食店も豊富。新しいオフィスをお探しの方、ぜひ一度ご検討ください。詳細や内覧のご希望は、お気軽にお問い合わせください。
※掲載内容とお引渡し状態が異なる場合は現況を優先させていただきます。
OVERVIEW
- 物件No.
- 2-3727
- 募集期間
- 2025年12月31日まで
- 所在地
- 江東区亀戸
- 最寄駅
-
JR中央線・総武線各駅停車
亀戸駅 徒歩4分
東武亀戸線
亀戸駅 徒歩4分
JR総武線快速
錦糸町駅 徒歩14分
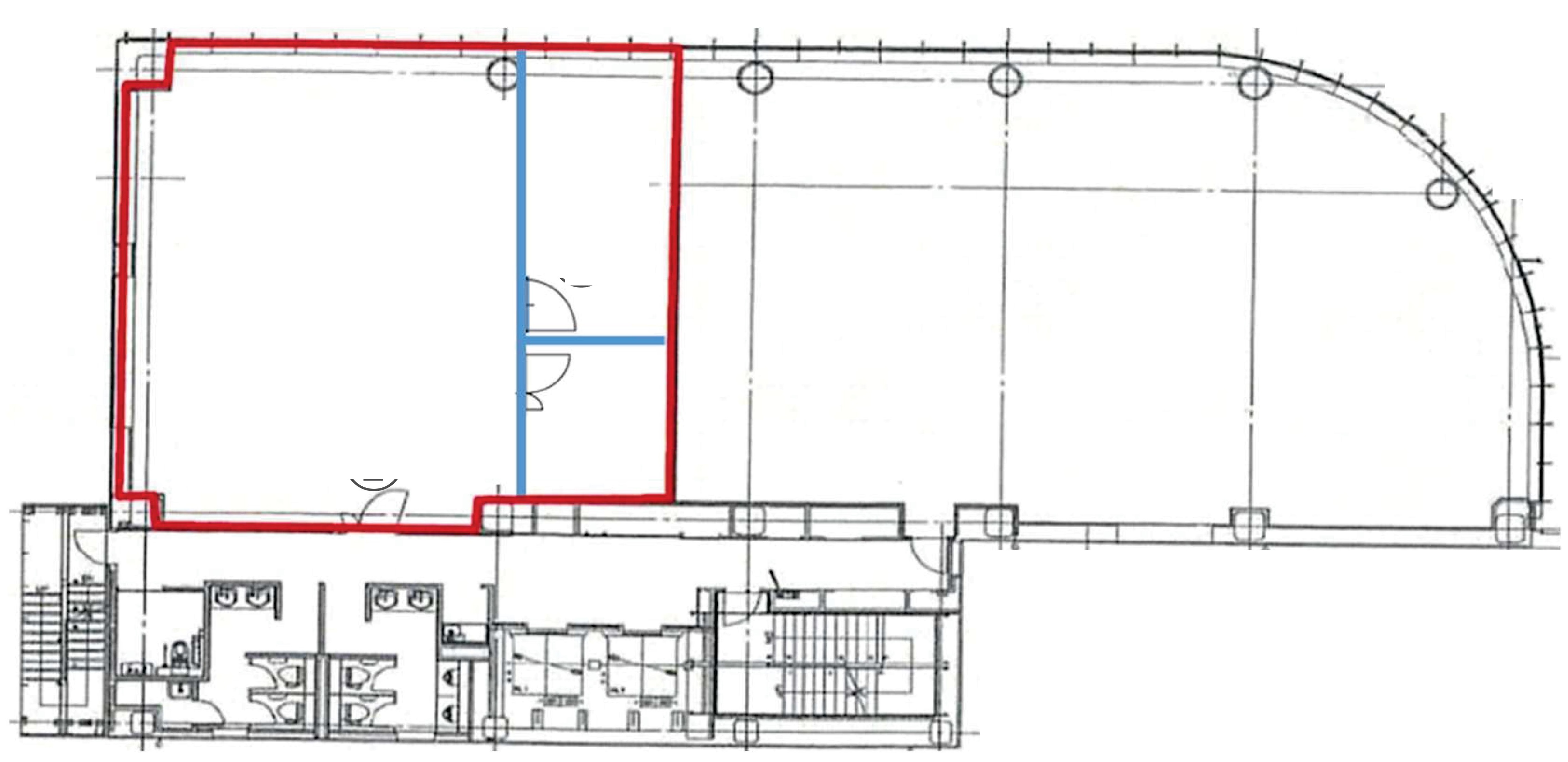
- 面積
- 49.59坪 / 163.93㎡
- 会議室
- 10 名掛け会議室×1
他パーティション間仕切り×1
- 推奨人数
- 20~25人
- 構造
- 鉄骨造
- 規模
- 地下1階付8階建
- 施工
- 2010年
- エレベーター
- 2基(13人乗)
- 天井の高さ
- 2,700mm
- 空調
- 個別空調
- トイレ
- 共用 男女別 洋式
- 床使用
- OAフロア(H=100mm)
- 賃料
- ご相談
- 共益費
- 賃料に含む
- 預託金
- 賃料の12ヶ月分
- 契約期間
- 2年
- 引き渡し時期
- ご相談
- その他
- 更新料:無/ 償却:無/ 礼金:無/ 契約形態:普通賃貸借契約/
現在オンライン内覧が可能です
オンライン内覧について詳しくはこちら
CHECK IT!
この物件についてもっと詳しく
そのまんまオフィス会員
3つのメリット
-

物件の
詳細情報の公開 -

新着物件を
お知らせ -

未公開物件を
ご紹介












