
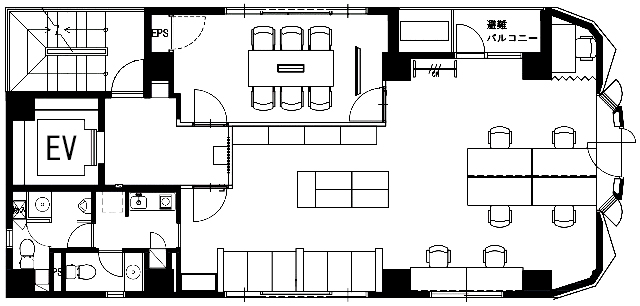
【市ヶ谷駅】徒歩3分、【九段下駅】も徒歩9分と、徒歩10分圏内に2駅5路線利用可能な便利な立地に、フルセットアップオフィスが誕生いたしました。執務室や会議室等のオフィス家具をはじめ、Wi-Fiやセコムのセキュリティも完備されており、入居後すぐに業務を開始することのできる物件です。会議室には防音対策と大型モニターを設置しており、来客対応も安心です。集中ブースやファミレス席など効率的なレイアウトがあらかじめ完成しており、快適な働き方をサポートいたします。宅配ボックスも完備されておりますので、ご不在時の荷物受け取りも安心です。ぜひ一度ご内見ください!
※レイアウト図面内の什器・備品はイメージとなります。掲載写真とお引渡し状態が異なる場合、現況を優先させていただきます。
OVERVIEW
- 物件No.
- 2-3733
- 募集期間
- ご成約まで
- 所在地
- 千代田区九段南
- 最寄駅
-
東京都交通局新宿線
市ヶ谷駅 徒歩4分
東京メトロ有楽町線
市ヶ谷駅 徒歩5分
JR中央線・総武線各駅停車
市ヶ谷駅 徒歩8分
- 面積
- 25.09坪 / 82.94㎡
- 会議室
- 6名掛け会議室×1
- 推奨人数
- 6~8人
- 構造
- 鉄骨鉄筋コンクリート造
- 規模
- 10階建
- 施工
- 1992年
- エレベーター
- 1基
- 天井の高さ
- 2,500㎜
- 空調
- 個別空調
- トイレ
- 専用 男女別 洋式
- 床仕様
- ー
- 賃料
- ご相談
- 共益費
- 賃料に含む
- 預託金
- 賃料の0~2ヶ月分
- 契約期間
- 2年
- 引き渡し時期
- 2026年2月予定
- その他
- 再契約料:無/ 償却:無/ 礼金:無/ 契約形態:定期建物賃貸借契約/ その他:契約の際には、貸主指定の保証会社と保証委託契約を締結していただきます。※預託額は、保証会社の審査により変動いたします。/中途解約可能、解約予告3ヶ月/
現在オンライン内覧が可能です
オンライン内覧について詳しくはこちら
CHECK IT!
この物件についてもっと詳しく
そのまんまオフィス会員
3つのメリット
-

物件の
詳細情報の公開 -

新着物件を
お知らせ -

未公開物件を
ご紹介










