
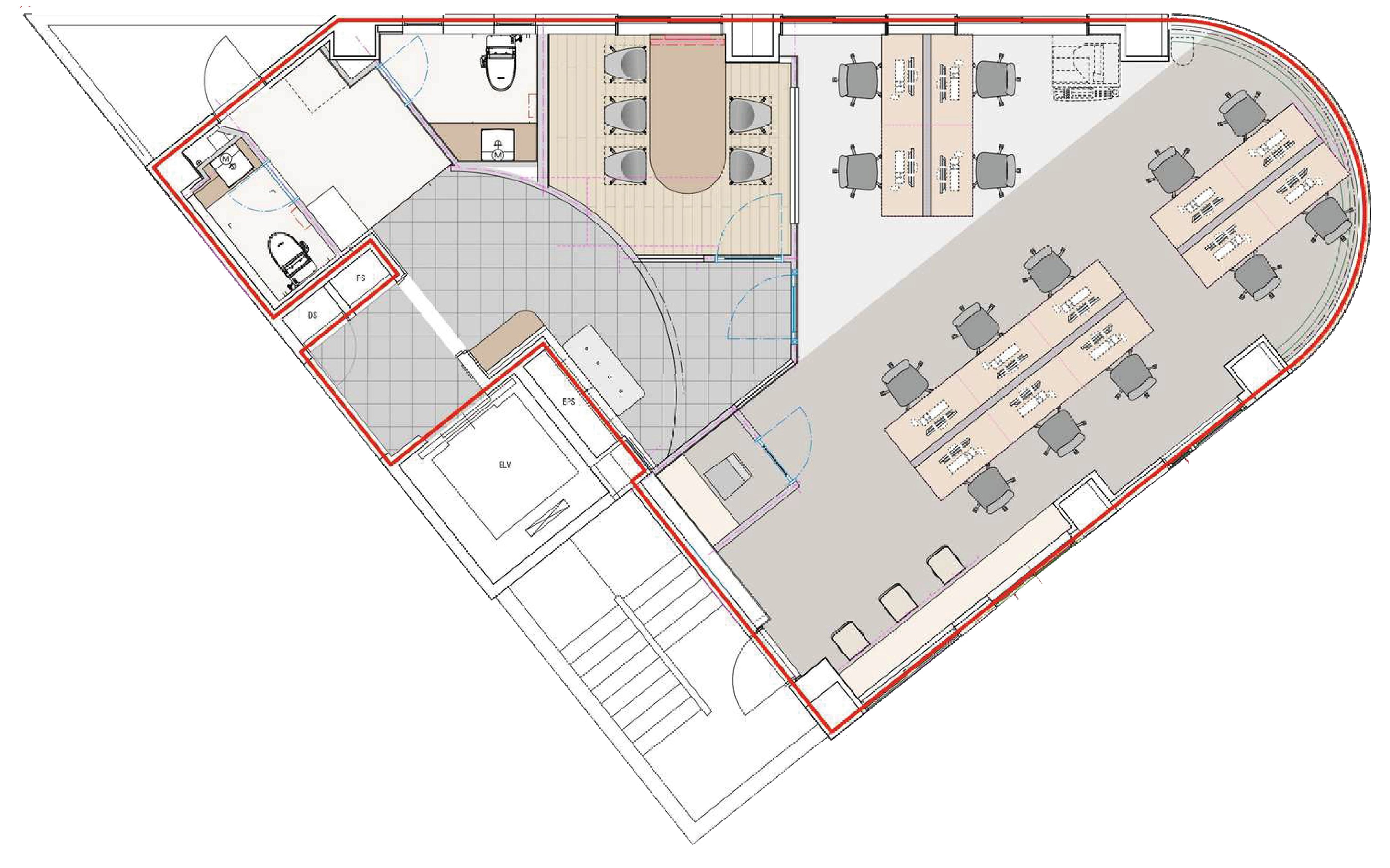
東日本橋エリアでお探しの方に、オススメのセットアップオフィスをご紹介します。こちらは、光と余白を大切にしたデザインが特徴のオフィスです。白を基調とした明るい空間に自然光がたっぷり入り、働く人の思考や創造性を伸ばしてくれる、そんな雰囲気になっています。全区画に什器が付いているので、デスクやチェア、照明などが最初から揃っていて、入居後すぐに業務をスタートできます。各フロアには個室テレブースも設置されているので、オンライン会議や集中作業にも便利です。当該フロアは4~5名掛けの会議室、執務室内の窓際にカウンタースペースを設けております。またエントランスもゆとりのある円形を用いた特徴ある作り、間仕切りにガラスを採用することで「透明性や明るさ」等を意識したエントランスです。JR総武線【浅草橋駅】や都営浅草線【東日本橋駅】、都営新宿線【馬喰横山駅】など、複数路線・複数駅が徒歩圏内。東京駅や日本橋、新橋、品川など主要エリアにも短時間でアクセスできる立地です。ご興味がありましたら、どうぞお気軽にお問い合わせください。
※掲載内容とお引渡し状態が異なる場合は現況を優先させていただきます。
OVERVIEW
- 物件No.
- 2-3749
- 募集期間
- ご成約まで
- 所在地
- 中央区東日本橋
- 最寄駅
-
東京都交通局浅草線
東日本橋駅 徒歩2分
東京都交通局新宿線
馬喰横山駅 徒歩2分
JR総武快速線
馬喰町駅 徒歩5分
- 面積
- 26.73坪 / 88.38㎡
- 会議室
- 4~5名掛け会議室×1
- 推奨人数
- 10~14人
- 構造
- 鉄筋コンクリート造
- 規模
- 地下1階付6階建
- 施工
- 1989年
- エレベーター
- 1基
- 天井の高さ
- ―
- 空調
- 個別空調
- トイレ
- 専用 男女別 洋式
- 床仕様
- ―
- 賃料
- ご相談
- 共益費
- 賃料に含む
- 預託金
- 賃料の6ヶ月分
- 契約期間
- 2年
- 引き渡し時期
- 2025年12月中旬予定
- その他
- 更新料:無/ 償却:無/ 礼金:無/ 契約形態:普通賃貸借契約/ その他:契約の際に、貸主指定の保証会社と保証委託契約を締結いただくことで、預託金無しでの入居相談が可能です。※与信状況により、預託額が変動する場合がございます。/
現在オンライン内覧が可能です
オンライン内覧について詳しくはこちら
CHECK IT!
この物件についてもっと詳しく
そのまんまオフィス会員
3つのメリット
-

物件の
詳細情報の公開 -

新着物件を
お知らせ -

未公開物件を
ご紹介

















