
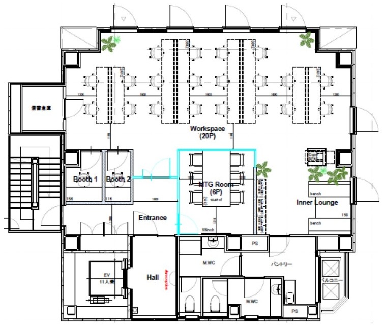
空港アクセスに利便性の良い、大門・浜松町エリアに新築セットアップ区画が登場しました!室内は、受付台・6名掛けの会議室×1室・対面ソファ席・フォンブース×2室が設置されており、執務空間は20名前後(※1,200mm幅のデスク想定)の設置が可能です。セットアップの設置内容に加え、新築ならではのキレイな水回りや高級感のあるエントランスが特徴的です。1階にはビルの入居テナント様専用で利用可能な共用会議室も設置されており、利用頻度に応じてフレキシブルな利用も可能です。周辺は行列のできる飲食店が点在するエリアで多種多様なランチをお楽しみいただける環境となっており、従業員様の満足度向上にピッタリなエリアとなっております。港区内にて20名前後のオフィスを検討中の企業様、ぜひ一度ご内見ください!
※掲載内容とお引渡し状態が異なる場合は現況を優先させていただきます。
OVERVIEW
- 物件No.
- 2-3867
- 募集期間
- 成約まで
- 所在地
- 港区浜松町
- 最寄駅
-
東京都交通局大江戸線
大門駅 徒歩3分
JR山手線
浜松町駅 徒歩4分
東京都交通局三田線
芝公園駅 徒歩13分
- 面積
- 41.9坪 / 138.35㎡
- 会議室
- 6名掛け会議室×1
- 推奨人数
- 18~20人
- 構造
- 鉄骨造
- 規模
- 11階建
- 施工
- 2025年
- エレベーター
- 1基
- 天井の高さ
- ー
- 空調
- 個別空調
- トイレ
- 専用 男女別 洋式
- 床仕様
- OAフロア(H=250mm)
- 賃料
- 1,382,700円
- 共益費
- 賃料に含む
- 預託金
- 賃料の6ヶ月分
- 契約期間
- 2年
- 引き渡し時期
- 即日
- その他
- 更新料:無/ 償却:無/ 礼金:無/ 契約形態:普通賃貸借契約/ その他:契約の際には、貸主指定の保証会社と保証委託契約を締結していただきます。/
現在オンライン内覧が可能です
オンライン内覧について詳しくはこちら
CHECK IT!
この物件についてもっと詳しく
そのまんまオフィス会員
3つのメリット
-

物件の
詳細情報の公開 -

新着物件を
お知らせ -

未公開物件を
ご紹介













