
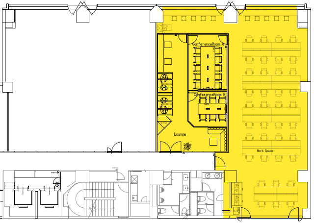
2020年6月に大規模リニューアル工事実施済(外観・エントランス・ファサード)の物件を紹介させて頂きます。この場所で働く従業員の皆様のモチベーションを高める、高級感あふれるリニューアルを施しております。エントランスは鏡を利用し大きく品格のある空間で従業員の皆様・お客様をお出迎えします。清洲橋通り沿いに面し柔らかく光が差し込む貸室は、坪数以上に開放的に感じられる執務空間となっております。また、貸室内は今回新たにセットアップ工事を実施!会議室×2室(10名用・6名用)、ラウンジ、受付を設置したレイアウトとなっております。重厚感を感じさせつつ柔らかな間接照明を設置することで落ち着きのある空間を演出しております。
※掲載内容とお引渡し状態が異なる場合は、現況を優先させていただきます。
OVERVIEW
- 物件No.
- 2-3882
- 募集期間
- ご成約まで
- 所在地
- 中央区日本橋久松町
- 最寄駅
-
東京都交通局新宿線
浜町駅 徒歩3分
東京都交通局浅草線
人形町駅 徒歩5分
東京メトロ日比谷線
人形町駅 徒歩5分
- 面積
- 64.66坪 / 213.74㎡
- 会議室
- 10名掛け会議室×1室
6名掛け会議室×1室
- 推奨人数
- 30~40人
- 構造
- 鉄骨鉄筋コンクリート造
- 規模
- 地下1階付9階建
- 施工
- 1989年
- エレベーター
- 2基
- 天井の高さ
- 2,700mm
- 空調
- 個別空調
- トイレ
- 共用 男女別 洋式
- 床仕様
- OAフロア
- 賃料
- ご相談
- 共益費
- ご相談
- 預託金
- ご相談
- 契約期間
- 2年
- 引き渡し時期
- 2026年5月中旬予定
- その他
- 更新料:無/ 償却:無/ 礼金:無/ 契約形態:普通賃貸借契約/ その他:契約の際には、貸主指定の保証会社と保証委託契約を締結いただきます。/
現在オンライン内覧が可能です
オンライン内覧について詳しくはこちら
CHECK IT!
この物件についてもっと詳しく
そのまんまオフィス会員
3つのメリット
-

物件の
詳細情報の公開 -

新着物件を
お知らせ -

未公開物件を
ご紹介










