
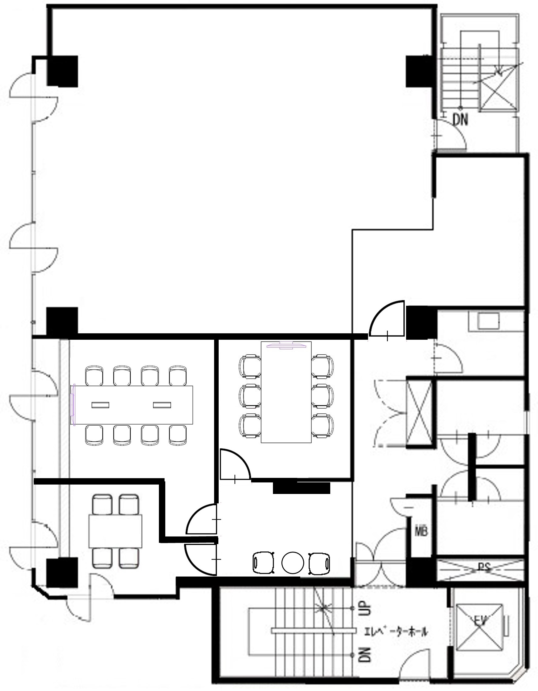
空港アクセスが良く再開発で新たなビジネス街へと進化中の浜松町エリアに居抜き物件(居抜きオフィス)が登場しました!室内は、受付台・会議室3室(8名用×1・6名用×1・4名用×1)が設置され、来客や会議の多い企業様におすすめの室内仕様となっております。執務室は24名前後での利用が可能で男女別のトイレが執務室外の動線に配置されており、利用者目線で造作された使い勝手の良いレイアウトとなっております。1977年築の建物ではありますが、2014年に新耐震基準に沿った耐震補強工事実施済の建物となっております。周辺はランチ環境に恵まれており、テイクアウトも含め様々な飲食店が点在しており、日本初の公園に数えられる芝公園や浜離宮、増上寺、東京タワーといった歴史的な建物も多く点在しているエリアに立地しております。港区内で50坪前後の居抜き・セットアップオフィスをご検討の企業様、ぜひ一度ご内見ください!
※掲載内容とお引渡し状態が異なる場合は現況を優先させていただきます。
OVERVIEW
- 物件No.
- 2-3884
- 募集期間
- 確認中
- 所在地
- 芝大門
- 最寄駅
-
東京都交通局大江戸線
大門駅 徒歩2分
JR山手線
浜松町駅 徒歩7分
- 面積
- 50坪 / 165.29㎡
- 会議室
- 8名掛け会議室×1
6名掛け会議室×1
4名掛け会議室×1
- 推奨人数
- 24人前後
- 構造
- 鉄骨鉄筋コンクリート造
- 規模
- 8階建
- 施工
- 1977年
- エレベーター
- 1基
- 天井の高さ
- ー
- 空調
- 個別空調
- トイレ
- 専用 男女別 洋式
- 床仕様
- OAフロア
- 賃料
- 800,000円
- 共益費
- 賃料に含む
- 預託金
- 賃料の4ヶ月分
- 契約期間
- 2年
- 引き渡し時期
- ご相談
- その他
- 更新料:新賃料の1ヶ月分/ 償却:無/ 礼金:無/ 契約形態:普通賃貸借契約/ その他:契約の際には、貸主指定の保証会社と保証委託契約を締結していただきます。/
現在オンライン内覧が可能です
オンライン内覧について詳しくはこちら
CHECK IT!
この物件についてもっと詳しく
そのまんまオフィス会員
3つのメリット
-

物件の
詳細情報の公開 -

新着物件を
お知らせ -

未公開物件を
ご紹介








