
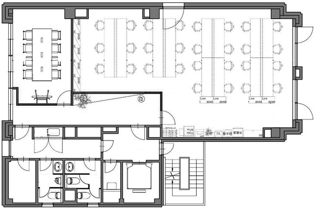
市ヶ谷エリアに位置する、交通利便性と落ち着いた周辺環境を兼ね備えたセットアップオフィスです。東京メトロ南北線【市ヶ谷駅】5番出口徒歩2分、JR中央・総武線各駅停車【市ヶ谷駅】も徒歩圏内と、複数路線が利用可能。都心主要エリアへのアクセスに優れ、来客の多い企業様にも安心の立地です。外堀通りに面し、周辺には飲食店やコンビニ、金融機関などが点在しており、日々の業務を快適にサポートする環境が整っています。また、沿道の木々は桜並木となりますので、春は桜の開花を、夏は新緑、秋は紅葉と外濠と四季の移ろいを感じることができる環境も魅力のひとつです。本物件は内装造作付きのセットアップオフィスとしてのお引渡しとなり、8名掛けの会議室をはじめ、すぐに業務を開始できるレイアウトを想定。内装工事の手間や初期コストを抑えつつ、効率的なオフィス移転を実現したい企業様におすすめです。市ヶ谷エリアで、機能性と立地を重視される企業様にぜひご検討いただきたい一室です。
※現在リニューアル工事内容等を調整中です。工事内容等に変更が生じる可能性がございます。掲載内容とお引渡し状態が異なる場合は現況を優先させていただきます。
OVERVIEW
- 物件No.
- 2-3895
- 募集期間
- ご成約まで
- 所在地
- 新宿区市谷田町
- 最寄駅
-
東京メトロ南北線
市ヶ谷駅 徒歩2分
JR中央線・総武線各駅停車
市ヶ谷駅 徒歩7分
東京都交通局新宿線
市ヶ谷駅 徒歩10分
- 面積
- 50.82坪 / 168㎡
- 会議室
- 8名掛け会議室×1
- 推奨人数
- 25~28人
- 構造
- 鉄骨・鉄筋コンクリート造
- 規模
- 地下2階付9階建
- 施工
- 1993年
- エレベーター
- 2基(1基は地下専用)
- 天井の高さ
- ―
- 空調
- 個別空調
- トイレ
- 専用 男女別 洋式
- 床仕様
- OAフロア
- 賃料
- 952,430円
- 共益費
- 賃料に含む
- 預託金
- 賃料の6ヶ月分
- 契約期間
- 2年
- 引き渡し時期
- 2026年7月1日予定
- その他
- 再契約料:新賃料の1ヶ月分/ 償却:無/ 礼金:無/ 契約形態:定期建物賃貸借契約/ その他:契約の際には、SFビルサポート株式会社と保証委託契約を締結していただきます。※与信状況によって預託金額が変動する場合がございます。/
現在オンライン内覧が可能です
オンライン内覧について詳しくはこちら
CHECK IT!
この物件についてもっと詳しく
そのまんまオフィス会員
3つのメリット
-

物件の
詳細情報の公開 -

新着物件を
お知らせ -

未公開物件を
ご紹介










