
東京メトロ有楽町線【新富町駅】」から徒歩1分の好立地に、セットアップオフィスが新たに登場いたします!
銀座にも隣接し、周辺にはオフィスが多数立地するビジネスに最適な環境。交通アクセスの良さも大きな魅力です。
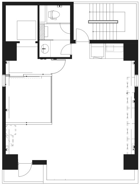
貸室内には、温かみのある雰囲気の会議室を設置。ガラスパーテーションで仕切られた空間は、3〜8名様程度でのご利用に最適です。シンプルでレイアウトしやすい内装に加え、木目調のオシャレな受付台も設置済み。居心地の良さと機能性を兼ね備えた空間を提供いたします。
石貼りの重厚感ある外観・エントランスは、ご来客のお客様にも好印象。トイレには収納棚や化粧鏡があり、女性にも好評です。さらに、ビジネスホテルやコンビニも徒歩1分と利便性も抜群!
新富町エリアで20坪前後のセットアップオフィスをお探しの企業様、スタートアップやすぐに移転したい企業様にもおすすめです。ぜひ一度、ご内見くださいませ。
※掲載内容とお引渡し状態が異なる場合は現況を優先させていただきます。
OVERVIEW
- 物件No.
- 1-884
- 募集期間
- ご成約まで
- 所在地
- 中央区新富
- 最寄駅
-
東京メトロ有楽町線
新富町駅 徒歩2分
東京メトロ日比谷線
築地駅 徒歩7分
東京都交通局浅草線
宝町駅 徒歩7分
- 面積
- 19.71坪 / 65.16㎡
- 会議室
- 4名掛け会議室×1
- 推奨人数
- 8~10人
- 構造
- 鉄筋コンクリート造
- 規模
- 地下1階付7階建
- 施工
- 1992年
- エレベーター
- 1基(6人乗)
- 天井の高さ
- 2,400mm
- 空調
- 個別空調
- トイレ
- 専用 男女共用 洋式
- 床仕様
- タイルカーペット
- 賃料
- 335,070円
- 共益費
- 59,130円
- 預託金
- 賃料の6ヶ月分
- 契約期間
- 2年
- 引き渡し時期
- 2026年3月下旬予定
- その他
- 更新料:新賃料の1ヶ月分/ 償却:賃料の1ヶ月分/ 礼金:無/ 契約形態:普通賃貸借契約/ その他:契約の際には、SFビルサポート株式会社と保証委託契約を締結していただきます。※与信状況によって預託金額が変動する場合がございます。/
現在オンライン内覧が可能です
オンライン内覧について詳しくはこちら
CHECK IT!
この物件についてもっと詳しく
そのまんまオフィス会員
3つのメリット
-

物件の
詳細情報の公開 -

新着物件を
お知らせ -

未公開物件を
ご紹介















