
自分の仕事場をみんなに紹介したいと思ったことはありませんか?歴史と伝統の町、日本橋エリアにそんなオフィスビルがございます。出勤時に、お客様の来訪時に、新しい仲間を迎える時に真っ先に目に入るビルの外観・エントランスは石や木、緑をふんだんに取り入れた自然と調和した仕様にリニューアルされ、長いアプローチを活かした癒しを与える空間に生まれ変わりました。EVの扉が開くと同時に広がる室内はデザイン性を高め、会議室が最初から設置されていることで機能性も充実しています。働く前にエントランスで心を整える、仕事場とは働く場所である前に、人生の中で多くの時間を過ごす場所であるということを考え、様々なこだわりを取り入れました。ぜひ一度ご覧ください。
※掲載内容とお引渡し状態が異なる場合は現況を優先させていただきます。
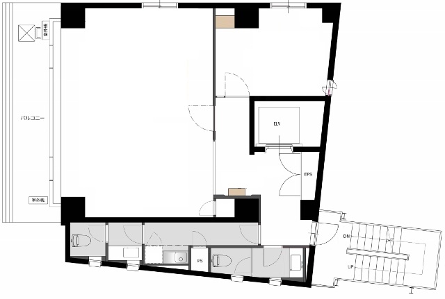
OVERVIEW
- 物件No.
- 1-907
- 募集期間
- ご成約まで
- 所在地
- 中央区日本橋大伝馬町
- 最寄駅
-
東京メトロ日比谷線
小伝馬町駅 徒歩3分
JR総武線快速
新日本橋駅 徒歩5分
東京メトロ銀座線
三越前駅 徒歩9分
- 面積
- 21.86坪 / 72.27㎡
- 会議室
- 6名掛け会議室×1
- 推奨人数
- 10~12人
- 構造
- 鉄骨鉄筋コンクリート造
- 規模
- 9階建
- 施工
- 1984年
- エレベーター
- 1基(9人乗)
- 天井の高さ
- 2,800mm
- 空調
- 個別空調
- トイレ
- 専用 男女別 洋式
- 床仕様
- OAフロア
- 賃料
- ご相談
- 共益費
- 賃料に含む
- 預託金
- ご相談
- 契約期間
- 2年
- 引き渡し時期
- ご相談
- その他
- 更新料:無/ 礼金:無/ 償却:無/ 契約形態:普通賃貸借契約/ その他:契約の際にはSFビルサポート株式会社と保証委託契約を締結していただきます。 ※与信状況によって預託金額が変動する場合がございます。/
現在オンライン内覧が可能です
オンライン内覧について詳しくはこちら
CHECK IT!
この物件についてもっと詳しく
そのまんまオフィス会員
3つのメリット
-

物件の
詳細情報の公開 -

新着物件を
お知らせ -

未公開物件を
ご紹介










