新耐震
MUTOH浜町ビル
新耐震
MUTOH浜町ビル
- 所在地
- :
- 東京都中央区日本橋浜町2-13-6
- 最寄駅
- :
-
浜町駅まで徒歩3分
人形町駅まで徒歩5分
人形町駅まで徒歩5分
馬喰横山駅まで徒歩7分
東日本橋駅まで徒歩7分
- 構造
- :
- 鉄骨鉄筋コンクリート造/新耐震
- 規模
- :
- 地下1階付8階建
- 竣工
- :
- 1988年7月
- 設備
- :
- EV:1基(15人乗)、駐車場:有
現在募集中の区画
- 階数
- 面積
- 賃料
- 共益費
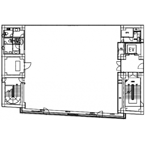
- 間取図
エリア条件が近い物件
エリア条件が近い物件
お気軽にお問合せください
- HOME
- >
- エリアから探す
- >
- 中央区
- >
- 小伝馬町・東日本橋・日本橋浜町
- >
- MUTOH浜町ビル
