新耐震
MUTOH浜町ビル
8階(東京都中央区日本橋浜町)
新耐震
MUTOH浜町ビル
8階(東京都中央区日本橋浜町)
- 賃料(坪単価):
- 相談(@―)
- 共益費(坪単価)
- :
- 相談 (@―)
- 預託金(保証金/敷金)
- :
- ―(12ヶ月)
- 面積
- :
- 99.85坪 (330.09m²)
- 所在地
- :
- 東京都中央区日本橋浜町2-13-6
- 最寄駅
- :
-
浜町駅まで徒歩3分
人形町駅まで徒歩5分
人形町駅まで徒歩5分
馬喰横山駅まで徒歩7分
東日本橋駅まで徒歩7分
物件情報
所在地・アクセス
- 物件名
- MUTOH浜町ビル 8階
- 所在地
- 東京都中央区日本橋浜町2-13-6
- 最寄駅
-
都営新宿線 浜町駅まで徒歩3分
都営浅草線 人形町駅まで徒歩5分
東京メトロ日比谷線 人形町駅まで徒歩5分
都営新宿線 馬喰横山駅まで徒歩7分
都営浅草線 東日本橋駅まで徒歩7分
賃貸条件
- 賃料(坪単価)
- 相談(@―)
- 礼 金
- 無
- 共益費(坪単価)
- 相談(@―)
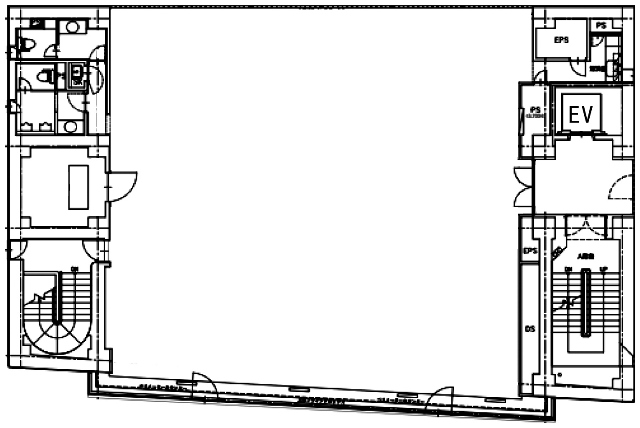
- 面 積
- 99.85坪 (330.09m²)
- 賃料+共益費(坪単価)
- 相談 (@―)
- 償 却
- 無
- 預託金(保証金/敷金)
- ―(12ヶ月)
- 入居可能日
- 2026年3月1日予定
- 更新料(再契約料)
- 無
- 契約期間
- 2年
物件概要
- 特 徴
- 構 造
- 鉄骨鉄筋コンクリート造/新耐震
- 物件タイプ
- 事務所
- 規 模
- 地下1階付8階建
- 取引態様
- 一般媒介
- 竣 工
- 1988年7月
- 設 備
-
E V :1基(15人乗)、天井高:2500㎜、床仕様:OAフロア(H=70mm)、空調:セントラル・個別併用、トイレ:専用 男女別 洋式
その他:機械警備、駐車場設備あり
- 備 考
-
■電気容量:30VA/㎡ ■エントランス開放時間:平日7:00~21:00、土曜7:30~17:00、日祝Close ※左記時間帯以外は通用口よりセキュリティカードにて入退館可能
注) 上記の価格には、別途、消費税及び地方消費税が課されます。
消費税率が変更された場合には、以後、変更後の税率が課されることとなります。
物件情報更新日:2025-12-23
お気軽にお問合せください
- HOME
- >
- エリアから探す
- >
- 中央区
- >
- 小伝馬町・東日本橋・日本橋浜町
- >
- MUTOH浜町ビル
- >
- MUTOH浜町ビル 8階
