新耐震
イワハナビル
新耐震
イワハナビル
- 所在地
- :
- 東京都江東区亀戸1-32-8
- 最寄駅
- :
-
亀戸駅まで徒歩4分
亀戸駅まで徒歩4分
西大島駅まで徒歩9分
錦糸町駅まで徒歩15分
住吉駅まで徒歩19分
- 構造
- :
- 鉄骨鉄筋コンクリート造/新耐震
- 規模
- :
- 9階建
- 竣工
- :
- 1991年4月
- 設備
- :
- EV:1基
現在募集中の区画
- 階数
- 面積
- 賃料
- 共益費
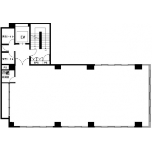
- 間取図
エリア条件が近い物件
エリア条件が近い物件
お気軽にお問合せください
