新耐震
セットアップ・居抜物件
BIASTA JIMBOCHO
新耐震
セットアップ・居抜物件
BIASTA JIMBOCHO
- 所在地
- :
- 東京都千代田区神田錦町3-14-1
- 最寄駅
- :
-
小川町駅まで徒歩6分
新御茶ノ水駅まで徒歩6分
神保町駅まで徒歩7分
神保町駅まで徒歩7分
神田駅まで徒歩12分
- 構造
- :
- 鉄筋コンクリート造/新耐震
- 規模
- :
- 8階建
- 竣工
- :
- 2025年12月
- 設備
- :
- EV:1基(11人乗)
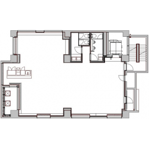
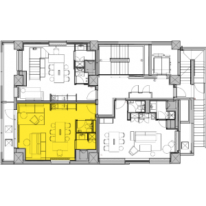
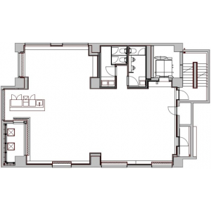
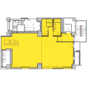
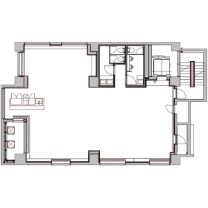
現在募集中の区画
- 階数
- 面積
- 賃料
- 共益費
- 間取図
エリア条件が近い物件
エリア条件が近い物件
お気軽にお問合せください
- HOME
- >
- エリアから探す
- >
- 千代田区
- >
- 御茶ノ水・神田・秋葉原
- >
- BIASTA JIMBOCHO
