居抜物件
新耐震
BIASTA JIMBOCHO
203号室(東京都千代田区神田錦町)
居抜物件
新耐震
BIASTA JIMBOCHO
203号室(東京都千代田区神田錦町)
- 賃料(坪単価):
- 546,810円(@33,000円)
- 共益費(坪単価)
- :
- 賃料に含む (@―)
- 預託金(保証金/敷金)
- :
- 1,093,620円(2ヶ月)
- 面積
- :
- 16.57坪 (54.78m²)
- 所在地
- :
- 東京都千代田区神田錦町3-14-1
- 最寄駅
- :
-
小川町駅まで徒歩6分
新御茶ノ水駅まで徒歩6分
神保町駅まで徒歩7分
神保町駅まで徒歩7分
神田駅まで徒歩12分
撮影更新日:2026年01月19日
スタッフコメント
「本の街」神保町エリアに、2025年12月竣工の新築オフィスビルにセットアップオフィスが誕生!都営新宿線【小川町駅】・東京メトロ千代田線【新御茶ノ水駅】まで徒歩6分、東京メトロ半蔵門線・都営三田線【神保町駅】まで徒歩7分と、複数路線が利用可能な交通アクセスに優れた立地です。1階には入居者限定のシェアラウンジがあり、来客対応に便利な会議室も併設されています(※1)。8階にはルーフトップスペースを設けており、業務の合間にリフレッシュできる環境も整っています。貸室には10名用会議室の造作を設置予定。執務室は18~26名での利用を推奨しています。「オフィス=リビング」をコンセプトに、ナチュラルな家具や間接照明を積極的に取り入れ、自宅のリビングのような温かみのある空間を演出します。さらに原状回復義務なし(※2)で、退去時のコストを抑えられる点も魅力です。ご案内可能ですので、ぜひお気軽にお問い合わせください! ※1:1階シェアラウンジは貸切利用・会議室利用ともに要予約 ※2:現状変更や破損等を除く。契約時に別途クリーニング費用が発生します。
担当:田中 辰郎 支店:神田店 更新日:2026年4月10日
物件情報
所在地・アクセス
- 物件名
- BIASTA JIMBOCHO 203号室
- 所在地
- 東京都千代田区神田錦町3-14-1
- 最寄駅
-
都営新宿線 小川町駅まで徒歩6分
東京メトロ千代田線 新御茶ノ水駅まで徒歩6分
東京メトロ半蔵門線 神保町駅まで徒歩7分
都営三田線 神保町駅まで徒歩7分
JR山手線 神田駅まで徒歩12分
賃貸条件
- 賃料(坪単価)
- 546,810円(@33,000円)
- 礼 金
- 無
- 共益費(坪単価)
- 賃料に含む(@―)
- 面 積
- 16.57坪 (54.78m²)
- 賃料+共益費(坪単価)
- 546,810円 (@33,000円)
- 償 却
- 無
- 預託金(保証金/敷金)
- 1,093,620円(2ヶ月)
- 入居可能日
- 即日
- 更新料(再契約料)
- 無
- 契約期間
- 2年
物件概要
- 特 徴
- 構 造
- 鉄筋コンクリート造/新耐震
- 物件タイプ
- 住居
- 規 模
- 8階建
- 取引態様
- 専任媒介
- 竣 工
- 2025年12月
- 設 備
-
E V :1基(11人乗)、天井高:3280㎜、床仕様:OAフロア、空調:個別空調、トイレ:専用 男女共用 洋式
その他:エントランスセキュリティ
- 備 考
-
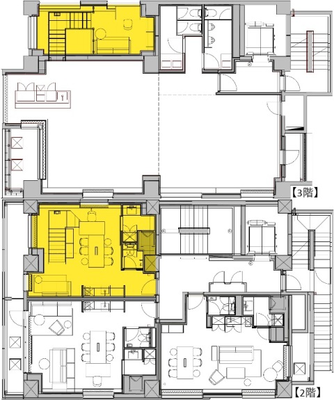
※図面着色部分が募集区画となりますが、契約面積と相違する可能性があることを予めご了承ください。 ■2025年12月、什器設置済 ■原状回復義務なし(現状変更した場合や破損等を除く) ■クリーニング費用をご負担いただきます。(契約時) ■SOHO利用可能 ※住居契約のため、賃料等は非課税となります。 ■1階共用ラウンジ(ENGAWA LOUNGE)あり(貸切利用は要予約) ■1階共用会議室2部屋(3名用・6名用)あり(予約制) ■8階ルーフテラス(IRORI BAR)あり ■貸主指定の保証会社と保証委託契約を締結していただきます。
注) 上記の価格には、別途、消費税及び地方消費税が課されます。
消費税率が変更された場合には、以後、変更後の税率が課されることとなります。
物件情報更新日:2026-04-09
お気軽にお問合せください
現在募集中の区画
- 階数
- 面積
- 賃料
- 共益費
- 間取図
- HOME
- >
- エリアから探す
- >
- 千代田区
- >
- 御茶ノ水・神田・秋葉原
- >
- BIASTA JIMBOCHO
- >
- BIASTA JIMBOCHO 203号室
