新耐震
当社貸主物件
日刊スポーツビル
新耐震
当社貸主物件
日刊スポーツビル
- 所在地
- :
- 東京都中央区築地3-5-10
- 最寄駅
- :
-
築地駅まで徒歩2分
新富町駅まで徒歩4分
八丁堀駅まで徒歩11分
東銀座駅まで徒歩12分
- 構造
- :
- 鉄骨鉄筋コンクリート・鉄筋コンクリート造/新耐震
- 規模
- :
- 地下3階付7階建
- 竣工
- :
- 1986年12月
- 設備
- :
- EV:3基
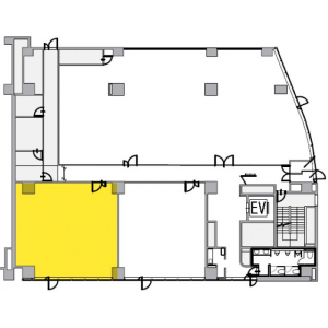
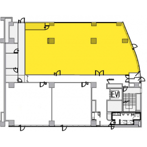
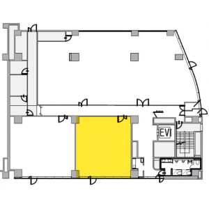
現在募集中の区画
- 階数
- 面積
- 賃料
- 共益費
- 間取図
エリア条件が近い物件
エリア条件が近い物件
お気軽にお問合せください
- HOME
- >
- エリアから探す
- >
- 中央区
- >
- 築地・新富・八丁堀・入船
- >
- 日刊スポーツビル
