新耐震
新川K・Tビル
新耐震
新川K・Tビル
- 所在地
- :
- 東京都中央区新川1-28-44
- 最寄駅
- :
-
八丁堀駅まで徒歩6分
八丁堀駅まで徒歩6分
茅場町駅まで徒歩8分
茅場町駅まで徒歩8分
宝町駅まで徒歩15分
- 構造
- :
- 鉄骨鉄筋コンクリート造/新耐震
- 規模
- :
- 地下1階付9階建
- 竣工
- :
- 1987年11月
- 設備
- :
- EV:2基(11人乗・15人乗)、駐車場:有
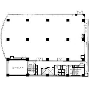
現在募集中の区画
- 階数
- 面積
- 賃料
- 共益費
- 間取図
エリア条件が近い物件
エリア条件が近い物件
お気軽にお問合せください
- HOME
- >
- エリアから探す
- >
- 中央区
- >
- 茅場町・兜町・人形町・新川
- >
- 新川K・Tビル
