新耐震
新川K・Tビル
2階(東京都中央区新川)
新耐震
新川K・Tビル
2階(東京都中央区新川)
- 賃料(坪単価):
- 相談(@―)
- 共益費(坪単価)
- :
- 相談 (@―)
- 預託金(保証金/敷金)
- :
- 相談(―)
- 面積
- :
- 160.37坪 (530.15m²)
- 所在地
- :
- 東京都中央区新川1-28-44
- 最寄駅
- :
-
八丁堀駅まで徒歩6分
八丁堀駅まで徒歩6分
茅場町駅まで徒歩8分
茅場町駅まで徒歩8分
宝町駅まで徒歩15分
物件情報
所在地・アクセス
- 物件名
- 新川K・Tビル 2階
- 所在地
- 東京都中央区新川1-28-44
- 最寄駅
-
東京メトロ日比谷線 八丁堀駅まで徒歩6分
JR京葉線 八丁堀駅まで徒歩6分
東京メトロ東西線 茅場町駅まで徒歩8分
東京メトロ日比谷線 茅場町駅まで徒歩8分
都営浅草線 宝町駅まで徒歩15分
賃貸条件
- 賃料(坪単価)
- 相談(@―)
- 礼 金
- 相談
- 共益費(坪単価)
- 相談(@―)
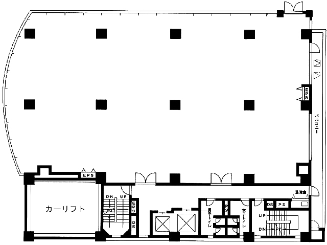
- 面 積
- 160.37坪 (530.15m²)
- 賃料+共益費(坪単価)
- 相談 (@―)
- 償 却
- 相談
- 預託金(保証金/敷金)
- 相談(―)
- 入居可能日
- 相談
- 更新料(再契約料)
- 相談
- 契約期間
- 相談
物件概要
- 特 徴
- 構 造
- 鉄骨鉄筋コンクリート造/新耐震
- 物件タイプ
- 事務所
- 規 模
- 地下1階付9階建
- 取引態様
- 一般媒介
- 竣 工
- 1987年11月
- 設 備
-
E V :2基(11人乗・15人乗)、天井高:2370㎜、床仕様:OAフロア(H=45mm)、空調:個別空調、トイレ:共用 男女別 洋式
その他:機械警備
- 備 考
- お問い合わせください。
物件情報更新日:2026-04-24
お気軽にお問合せください
現在募集中の区画
- 階数
- 面積
- 賃料
- 共益費
- 間取図
- HOME
- >
- エリアから探す
- >
- 中央区
- >
- 茅場町・兜町・人形町・新川
- >
- 新川K・Tビル
- >
- 新川K・Tビル 2階
