当社貸主物件
セットアップオフィス
新耐震
グランファースト神田紺屋町
3階(東京都千代田区神田紺屋町)
当社貸主物件
セットアップオフィス
新耐震
グランファースト神田紺屋町
3階(東京都千代田区神田紺屋町)
- 賃料(坪単価):
- 相談(@―)
- 共益費(坪単価)
- :
- 賃料に含む (@―)
- 預託金(保証金/敷金)
- :
- ー(相談)
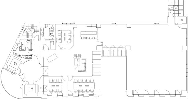
- 面積
- :
- 122.52坪 (405.04m²)
- 所在地
- :
- 東京都千代田区神田紺屋町15
- 最寄駅
- :
-
神田駅まで徒歩5分
神田駅まで徒歩5分
岩本町駅まで徒歩5分
新日本橋駅まで徒歩5分
三越前駅まで徒歩5分
スタッフコメント
まるでドラマのワンシーン。社員が喜ぶ笑顔、お客様が驚く顔が想像できるパーティーがしたくなるようなラグジュアリーオフィス。デザインだけではなく質感、機能性も兼ね備え、しっかりと働く姿も想像させてくれる リアリティもそこにはあります。設置されているオフィス家具は、デザイナーが選定したブランド品が採用されております。デザイン性が高く、高級感がある貸室内はオフィスに入った瞬間圧倒されます。(オフィス家具は、受付、会議室、リフレッシュルームに設置しております。)2022年11月には、エントランス・ファサードのリニューアル済!「こんなオフィスで働きたい」と思え、また五感がフルに刺激され、誰をも魅了するラグジュアリーオフィス。是非一度ご内見ください!
担当:吉儀 綾 支店:小伝馬町店 更新日:2026年4月7日
物件情報
所在地・アクセス
- 物件名
- グランファースト神田紺屋町 3階
- 所在地
- 東京都千代田区神田紺屋町15
- 最寄駅
-
JR山手線 神田駅まで徒歩5分
東京メトロ銀座線 神田駅まで徒歩5分
都営新宿線 岩本町駅まで徒歩5分
JR総武線快速 新日本橋駅まで徒歩5分
東京メトロ銀座線 三越前駅まで徒歩5分
賃貸条件
- 賃料(坪単価)
- 相談(@―)
- 礼 金
- 無
- 共益費(坪単価)
- 賃料に含む(@―)
- 面 積
- 122.52坪 (405.04m²)
- 賃料+共益費(坪単価)
- 相談 (@―)
- 償 却
- 無
- 預託金(保証金/敷金)
- ー(相談)
- 入居可能日
- 2026年9月上旬予定
- 更新料(再契約料)
- 無
- 契約期間
- 3年
物件概要
- 特 徴
- 構 造
- 鉄骨鉄筋コンクリート造/新耐震
- 物件タイプ
- 事務所
- 規 模
- 地下1階付10階建
- 取引態様
- 貸主
- 竣 工
- 1993年4月
- 設 備
-
E V :2基(13人乗)、天井高:2600㎜、床仕様:OAフロア、空調:個別空調、トイレ:専用 男女別 洋式
その他:機械警備、EV不停止機能付、駐車場設備あり
- 備 考
-
■2022年11月、CASBEE不動産評価認証【Sランク】取得 ※CASBEE(建築環境総合性能評価システム):建築物の環境性能の評価・格付け制度 ■2022年11月、エントランス・ファサードのリニューアル工事実施済 ■貸主指定の保証会社と保証委託契約を締結していただきます。
注) 上記の価格には、別途、消費税及び地方消費税が課されます。
消費税率が変更された場合には、以後、変更後の税率が課されることとなります。
物件情報更新日:2026-04-06
お気軽にお問合せください
現在募集中の区画
- 階数
- 面積
- 賃料
- 共益費
- 間取図
- HOME
- >
- エリアから探す
- >
- 千代田区
- >
- 御茶ノ水・神田・秋葉原
- >
- グランファースト神田紺屋町
- >
- グランファースト神田紺屋町 3階
