新耐震
大樹生命横浜桜木町ビル
7階(神奈川県横浜市中区太田町)
新耐震
大樹生命横浜桜木町ビル
7階(神奈川県横浜市中区太田町)
- 賃料(坪単価):
- 相談(@―)
- 共益費(坪単価)
- :
- 相談 (@―)
- 預託金(保証金/敷金)
- :
- 相談(―)
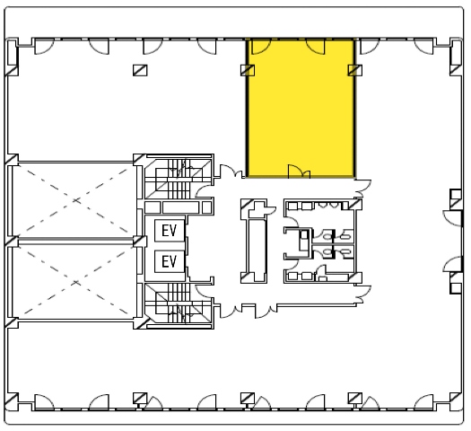
- 面積
- :
- 19.43坪 (64.26m²)
- 所在地
- :
- 神奈川県横浜市中区太田町6-84-2
- 最寄駅
- :
-
馬車道駅まで徒歩3分
関内駅まで徒歩4分
桜木町駅まで徒歩5分
桜木町駅まで徒歩5分
関内駅まで徒歩8分
物件情報
所在地・アクセス
- 物件名
- 大樹生命横浜桜木町ビル 7階
- 所在地
- 神奈川県横浜市中区太田町6-84-2
- 最寄駅
-
横浜高速鉄道みなとみらい線 馬車道駅まで徒歩3分
横浜市営ブルーライン 関内駅まで徒歩4分
JR根岸線 桜木町駅まで徒歩5分
横浜市営ブルーライン 桜木町駅まで徒歩5分
JR根岸線 関内駅まで徒歩8分
賃貸条件
- 賃料(坪単価)
- 相談(@―)
- 礼 金
- 相談
- 共益費(坪単価)
- 相談(@―)
- 面 積
- 19.43坪 (64.26m²)
- 賃料+共益費(坪単価)
- 相談 (@―)
- 償 却
- 相談
- 預託金(保証金/敷金)
- 相談(―)
- 入居可能日
- 相談
- 更新料(再契約料)
- 相談
- 契約期間
- 相談
物件概要
- 特 徴
- 構 造
- 鉄骨鉄筋コンクリート造/新耐震
- 物件タイプ
- 事務所
- 規 模
- 地下1階付8階建
- 取引態様
- 一般媒介
- 竣 工
- 1988年6月
- 設 備
-
E V :2基(11人乗)、天井高:2500㎜、床仕様:OAフロア(H=60mm)、空調:個別空調、トイレ:共用 男女別 洋式
その他:機械警備、駐車場設備あり
- 備 考
- お問い合わせください。
物件情報更新日:2026-01-07
お気軽にお問合せください
- HOME
- >
- エリアから探す
- >
- 横浜エリア
- >
- 横浜市中区
- >
- 大樹生命横浜桜木町ビル
- >
- 大樹生命横浜桜木町ビル 7階
