当社管理物件
セットアップオフィス
新耐震
クレス不動産神田ビル
4階(東京都千代田区神田須田町)
当社管理物件
セットアップオフィス
新耐震
クレス不動産神田ビル
4階(東京都千代田区神田須田町)
- 賃料(坪単価):
- 929,250円(@25,000円)
- 共益費(坪単価)
- :
- 賃料に含む (@―)
- 預託金(保証金/敷金)
- :
- 3,717,000円(4ヶ月)
- 面積
- :
- 37.17坪 (122.88m²)
- 所在地
- :
- 東京都千代田区神田須田町1-32
- 最寄駅
- :
-
神田駅まで徒歩3分
淡路町駅まで徒歩3分
小川町駅まで徒歩3分
新御茶ノ水駅まで徒歩3分
神田駅まで徒歩4分
スタッフコメント
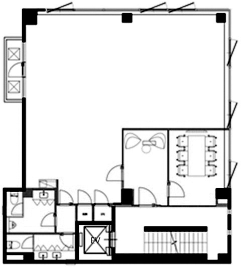
本物件は、JR山手線・中央線【神田駅】徒歩4分、東京メトロ銀座線【神田駅】徒歩3分、東京メトロ丸ノ内線【淡路町駅】徒歩3分に位置し、複数路線からアクセスが可能な便利な立地に位置しています。 執務室は整形で使いやすく、白を基調にしたシンプルで清潔感のある内装です。三面採光のためとても明るく、解放感があります。 また、受付スペース、会議室(什器設置済み)が備わったセットアップオフィスのため、工事費用も削減できます。周辺にはリーズナブルな飲食店が多数あり、ランチ環境も充実しています。 是非お気軽に現地をご確認ください。
担当:小川 雄太郎 支店:神田店 更新日:2026年5月14日
物件情報
所在地・アクセス
- 物件名
- クレス不動産神田ビル 4階
- 所在地
- 東京都千代田区神田須田町1-32
- 最寄駅
-
東京メトロ銀座線 神田駅まで徒歩3分
東京メトロ丸ノ内線 淡路町駅まで徒歩3分
都営新宿線 小川町駅まで徒歩3分
東京メトロ千代田線 新御茶ノ水駅まで徒歩3分
JR山手線 神田駅まで徒歩4分
賃貸条件
- 賃料(坪単価)
- 929,250円(@25,000円)
- 礼 金
- 無
- 共益費(坪単価)
- 賃料に含む(@―)
- 面 積
- 37.17坪 (122.88m²)
- 賃料+共益費(坪単価)
- 929,250円 (@25,000円)
- 償 却
- 無
- 預託金(保証金/敷金)
- 3,717,000円(4ヶ月)
- 入居可能日
- 2026年9月1日予定
- 更新料(再契約料)
- 無
- 契約期間
- 2年
物件概要
- 特 徴
- 構 造
- 鉄骨造/新耐震
- 物件タイプ
- 事務所
- 規 模
- 地下1階付5階建
- 取引態様
- 一般媒介
- 竣 工
- 1991年7月
- 設 備
-
E V :1基、天井高:-㎜、床仕様:OAフロア、空調:個別空調、トイレ:専用 男女別 洋式
その他:機械警備
- 備 考
-
■2019年2月、大規模リニューアル実施済(エントランス・EVホール・共用部分) ■2019年8月、内装造作付きセットアップ工事完了(会議室・ラウンジ什器設置済) ■エントランス開時間:全日7:00~20:00 ■SFビルサポート株式会社と保証委託契約を締結していただきます。 ※与信状況によって預託金額が変動する場合がございます。
注) 上記の価格には、別途、消費税及び地方消費税が課されます。
消費税率が変更された場合には、以後、変更後の税率が課されることとなります。
物件情報更新日:2026-05-13
お気軽にお問合せください
- HOME
- >
- エリアから探す
- >
- 千代田区
- >
- 御茶ノ水・神田・秋葉原
- >
- クレス不動産神田ビル
- >
- クレス不動産神田ビル 4階
