新耐震
CIRCLES日本橋馬喰町
7階(東京都中央区日本橋馬喰町)
新耐震
CIRCLES日本橋馬喰町
7階(東京都中央区日本橋馬喰町)
- 賃料(坪単価):
- 相談(@―)
- 共益費(坪単価)
- :
- 賃料に含む (@―)
- 預託金(保証金/敷金)
- :
- ―(6ヶ月)
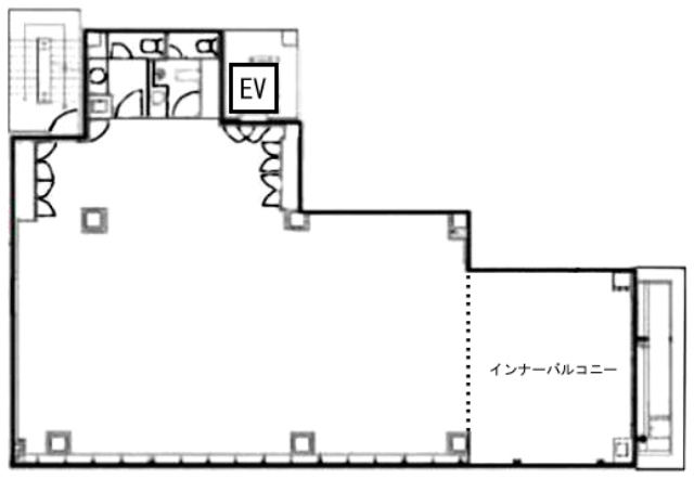
- 面積
- :
- 58.16坪 (192.29m²)
- 所在地
- :
- 東京都中央区日本橋馬喰町1-5-12
- 最寄駅
- :
-
馬喰町駅まで徒歩1分
馬喰横山駅まで徒歩1分
東日本橋駅まで徒歩4分
小伝馬町駅まで徒歩5分
浅草橋駅まで徒歩10分
物件情報
所在地・アクセス
- 物件名
- CIRCLES日本橋馬喰町 7階
- 所在地
- 東京都中央区日本橋馬喰町1-5-12
- 最寄駅
-
JR総武線快速 馬喰町駅まで徒歩1分
都営新宿線 馬喰横山駅まで徒歩1分
都営浅草線 東日本橋駅まで徒歩4分
東京メトロ日比谷線 小伝馬町駅まで徒歩5分
JR中央線 浅草橋駅まで徒歩10分
賃貸条件
- 賃料(坪単価)
- 相談(@―)
- 礼 金
- 無
- 共益費(坪単価)
- 賃料に含む(@―)
- 面 積
- 58.16坪 (192.29m²)
- 賃料+共益費(坪単価)
- 相談 (@―)
- 償 却
- 無
- 預託金(保証金/敷金)
- ―(6ヶ月)
- 入居可能日
- 即日
- 更新料(再契約料)
- 新賃料の1ヶ月分
- 契約期間
- 2~3年(定借)
物件概要
- 特 徴
- 構 造
- 鉄骨造/新耐震
- 物件タイプ
- 事務所
- 規 模
- 11階建
- 取引態様
- 一般媒介
- 竣 工
- 2019年12月
- 設 備
-
E V :1基、天井高:3,000㎜、大梁下:2,475㎜㎜、床仕様:OAフロア(H=50mm)、空調:個別空調、トイレ:専用 男女別 洋式
その他:機械警備、駐車場設備あり
- 備 考
-
■床荷重:300㎏/㎡ ■電気容量:30VA/㎡ ■その他設備⇒カフェ・共用ラウンジ(1階)、貸会議室(1・11階)、テラス(11階) ■エントランス開放時間:平日8:00~21:00、土日祝Close ※左記時間帯以外はセキュリティカード利用により入退館可能
注) 上記の価格には、別途、消費税及び地方消費税が課されます。
消費税率が変更された場合には、以後、変更後の税率が課されることとなります。
物件情報更新日:2026-04-23
お気軽にお問合せください
- HOME
- >
- エリアから探す
- >
- 中央区
- >
- 小伝馬町・東日本橋・日本橋浜町
- >
- CIRCLES日本橋馬喰町
- >
- CIRCLES日本橋馬喰町 7階
