新耐震
VORT元麻布
8階(東京都港区元麻布)
新耐震
VORT元麻布
8階(東京都港区元麻布)
- 賃料(坪単価):
- 相談(@―)
- 共益費(坪単価)
- :
- 相談 (@―)
- 預託金(保証金/敷金)
- :
- 相談(―)
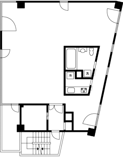
- 面積
- :
- 30.72坪 (101.58m²)
- 所在地
- :
- 東京都港区元麻布3-1-35
- 最寄駅
- :
-
六本木駅まで徒歩7分
六本木駅まで徒歩10分
麻布十番駅まで徒歩12分
麻布十番駅まで徒歩12分
広尾駅まで徒歩13分
物件情報
所在地・アクセス
- 物件名
- VORT元麻布 8階
- 所在地
- 東京都港区元麻布3-1-35
- 最寄駅
-
東京メトロ日比谷線 六本木駅まで徒歩7分
都営大江戸線 六本木駅まで徒歩10分
東京メトロ南北線 麻布十番駅まで徒歩12分
都営大江戸線 麻布十番駅まで徒歩12分
東京メトロ日比谷線 広尾駅まで徒歩13分
賃貸条件
- 賃料(坪単価)
- 相談(@―)
- 礼 金
- 相談
- 共益費(坪単価)
- 相談(@―)
- 面 積
- 30.72坪 (101.58m²)
- 賃料+共益費(坪単価)
- 相談 (@―)
- 償 却
- 相談
- 預託金(保証金/敷金)
- 相談(―)
- 入居可能日
- 相談
- 更新料(再契約料)
- 相談
- 契約期間
- 相談
物件概要
- 特 徴
-
- 構 造
- SRC造・RC造/新耐震
- 物件タイプ
- 住居・事務所
- 規 模
- 地下3階付8階建
- 取引態様
- 一般媒介
- 竣 工
- 1993年3月
- 設 備
-
E V :1基、天井高:2330㎜、床仕様:―、空調:個別空調、トイレ:専用 男女共用 洋式
その他:駐車場設備あり
- 備 考
- お問い合わせください。
物件情報更新日:2026-04-21
お気軽にお問合せください
現在募集中の区画
- 階数
- 面積
- 賃料
- 共益費
- 間取図
