新耐震
PMO神田岩本町
7階(東京都千代田区神田須田町)
新耐震
PMO神田岩本町
7階(東京都千代田区神田須田町)
- 賃料(坪単価):
- 相談(@―)
- 共益費(坪単価)
- :
- 賃料に含む (@―)
- 預託金(保証金/敷金)
- :
- ―(12ヶ月)
- 面積
- :
- 62.11坪 (205.34m²)
- 所在地
- :
- 東京都千代田区神田須田町2-9-2
- 最寄駅
- :
-
岩本町駅まで徒歩1分
秋葉原駅まで徒歩5分
神田駅まで徒歩5分
秋葉原駅まで徒歩5分
神田駅まで徒歩7分
物件情報
所在地・アクセス
- 物件名
- PMO神田岩本町 7階
- 所在地
- 東京都千代田区神田須田町2-9-2
- 最寄駅
-
都営新宿線 岩本町駅まで徒歩1分
JR山手線 秋葉原駅まで徒歩5分
東京メトロ銀座線 神田駅まで徒歩5分
つくばエクスプレス 秋葉原駅まで徒歩5分
JR山手線 神田駅まで徒歩7分
賃貸条件
- 賃料(坪単価)
- 相談(@―)
- 礼 金
- 無
- 共益費(坪単価)
- 賃料に含む(@―)
- 面 積
- 62.11坪 (205.34m²)
- 賃料+共益費(坪単価)
- 相談 (@―)
- 償 却
- 無
- 預託金(保証金/敷金)
- ―(12ヶ月)
- 入居可能日
- 即日
- 更新料(再契約料)
- 無
- 契約期間
- 3年(定借)
物件概要
- 特 徴
- 構 造
- コンクリート充填鋼管構造/新耐震
- 物件タイプ
- 事務所
- 規 模
- 10階建
- 取引態様
- 一般媒介
- 竣 工
- 2017年1月
- 設 備
-
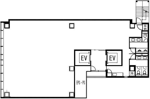
E V :2基(11人乗)、天井高:2700㎜、床仕様:OAフロア(H=100mm)、空調:個別空調、トイレ:専用 男女別 洋式
その他:機械警備、EV不停止機能付、エントランスセキュリティ
- 備 考
-
※契約面積や賃貸条件は、㎡を基準単位とします。 ■貸室面積には、トイレ・パントリー等の面積(28.53㎡/8.63坪)が含まれます。 ■床荷重:500㎏/㎡(一部1,000㎏/㎡) ■電気容量:60VA/㎡(75VA/㎡まで増設可能) ■机上平均照度:750Lx ■600㎜角システム天井 ■喫煙室あり(1階)
注) 上記の価格には、別途、消費税及び地方消費税が課されます。
消費税率が変更された場合には、以後、変更後の税率が課されることとなります。
物件情報更新日:2026-01-20
お気軽にお問合せください
- HOME
- >
- エリアから探す
- >
- 千代田区
- >
- 御茶ノ水・神田・秋葉原
- >
- PMO神田岩本町
- >
- PMO神田岩本町 7階
