新耐震
COERU SHIBUYA
8階(東京都渋谷区道玄坂)
新耐震
COERU SHIBUYA
8階(東京都渋谷区道玄坂)
- 賃料(坪単価):
- 相談(@―)
- 共益費(坪単価)
- :
- 無 (@―)
- 預託金(保証金/敷金)
- :
- ―(相談)
- 面積
- :
- 29.19坪 (96.50m²)
- 所在地
- :
- 東京都渋谷区道玄坂1-20-3
- 最寄駅
- :
-
渋谷駅まで徒歩4分
渋谷駅まで徒歩5分
渋谷駅まで徒歩6分
渋谷駅まで徒歩8分
渋谷駅まで徒歩8分
物件情報
所在地・アクセス
- 物件名
- COERU SHIBUYA 8階
- 所在地
- 東京都渋谷区道玄坂1-20-3
- 最寄駅
-
京王井の頭線 渋谷駅まで徒歩4分
東急田園都市線 渋谷駅まで徒歩5分
JR山手線 渋谷駅まで徒歩6分
東京メトロ銀座線 渋谷駅まで徒歩8分
東京メトロ半蔵門線 渋谷駅まで徒歩8分
賃貸条件
- 賃料(坪単価)
- 相談(@―)
- 礼 金
- 無
- 共益費(坪単価)
- 無(@―)
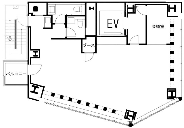
- 面 積
- 29.19坪 (96.50m²)
- 賃料+共益費(坪単価)
- 相談 (@―)
- 償 却
- 無
- 預託金(保証金/敷金)
- ―(相談)
- 入居可能日
- 2027年1月6日予定
- 更新料(再契約料)
- 無
- 契約期間
- 2年(定借)
物件概要
- 特 徴
- 構 造
- 鉄骨造、一部木造/新耐震
- 物件タイプ
- 事務所
- 規 模
- 13階建
- 取引態様
- 一般媒介
- 竣 工
- 2022年6月
- 設 備
-
E V :1基、天井高:3,210mm(梁下2,530mm)㎜、床仕様:OAフロア(H=60mm)、空調:個別空調、トイレ:専用 男女別 洋式
その他:機械警備、EV不停止機能付
- 備 考
-
■制震構造 ■内装付セットアップオフィス ■エントランス開放時間:全日8:00~20:00 ■貸室面積には、EPS・PS等の面積は含まれません。 ■床荷重:300㎏/㎡ ■電気容量:60VA/㎡ ■机上平均照度:700Lx ■電子ロック使用料:月額1,000円 ■貸主指定の保証会社と保証委託契約を締結していただきます。 ※締結いただかない場合、敷金は賃料の6ヶ月分となります。
注) 上記の価格には、別途、消費税及び地方消費税が課されます。
消費税率が変更された場合には、以後、変更後の税率が課されることとなります。
物件情報更新日:2026-04-08
お気軽にお問合せください
現在募集中の区画
- 階数
- 面積
- 賃料
- 共益費
- 間取図
- HOME
- >
- エリアから探す
- >
- 渋谷区
- >
- 宇田川町・道玄坂
- >
- COERU SHIBUYA
- >
- COERU SHIBUYA 8階
