居抜物件
キャンペーン実施中
新耐震
スタッフハウスビル
3階(東京都新宿区内藤町)
居抜物件
キャンペーン実施中
新耐震
スタッフハウスビル
3階(東京都新宿区内藤町)
- 賃料(坪単価):
- 742,824円(@15,200円)
- 共益費(坪単価)
- :
- 50,000円 (@―)
- 預託金(保証金/敷金)
- :
- 3,714,120円(5ヶ月)
- 面積
- :
- 48.87坪 (161.57m²)
- 所在地
- :
- 東京都新宿区内藤町1-5
- 最寄駅
- :
-
四谷三丁目駅まで徒歩8分
新宿御苑前駅まで徒歩8分
国立競技場駅まで徒歩9分
千駄ヶ谷駅まで徒歩10分
信濃町駅まで徒歩11分
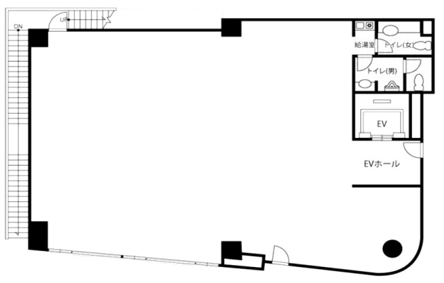
物件情報
所在地・アクセス
- 物件名
- スタッフハウスビル 3階
- 所在地
- 東京都新宿区内藤町1-5
- 最寄駅
-
東京メトロ丸ノ内線 四谷三丁目駅まで徒歩8分
東京メトロ丸ノ内線 新宿御苑前駅まで徒歩8分
都営大江戸線 国立競技場駅まで徒歩9分
JR中央線 千駄ヶ谷駅まで徒歩10分
JR中央線 信濃町駅まで徒歩11分
賃貸条件
- 賃料(坪単価)
- 742,824円(@15,200円)
- 礼 金
- 無
- 共益費(坪単価)
- 50,000円(@―)
- 面 積
- 48.87坪 (161.57m²)
- 賃料+共益費(坪単価)
- 792,824円 (@15,200円)
- 償 却
- 賃料の2ヶ月分
- 預託金(保証金/敷金)
- 3,714,120円(5ヶ月)
- 入居可能日
- 即日
- 更新料(再契約料)
- 新賃料の1ヶ月分
- 契約期間
- 2年
物件概要
- 特 徴
- 構 造
- 鉄骨鉄筋コンクリート造/新耐震
- 物件タイプ
- 事務所
- 規 模
- 地下2階付5階建
- 取引態様
- 一般媒介
- 竣 工
- 1992年6月
- 設 備
-
E V :1基、天井高:―㎜、床仕様:―、空調:個別空調、トイレ:専用 男女別 洋式
その他:機械警備、EV不停止機能付、駐車場設備あり
- 備 考
-
■引渡し:現況有姿(事務所居抜き) ■看板使用料:月額10,000円 ■貸主指定の火災保険にご加入いただきます。 ■SFビルサポート株式会社と保証委託契約を締結していただきます。 ※与信状況によって預託金額が変動する場合がございます。 ■駐車場設備:あり ※空台数等については個別にお問い合わせください。
注) 上記の価格には、別途、消費税及び地方消費税が課されます。
消費税率が変更された場合には、以後、変更後の税率が課されることとなります。
物件情報更新日:2026-04-13
お気軽にお問合せください
キャンペーン実施中。詳細はお問合せ下さい。
この物件のお問合せ現在募集中の区画
- 階数
- 面積
- 賃料
- 共益費
- 間取図
