新耐震
(仮称)四谷2丁目PJ
5階(東京都新宿区四谷)
新耐震
(仮称)四谷2丁目PJ
5階(東京都新宿区四谷)
- 賃料(坪単価):
- 相談(@―)
- 共益費(坪単価)
- :
- 相談 (@―)
- 預託金(保証金/敷金)
- :
- 相談(―)
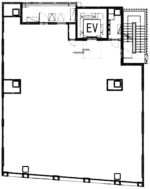
- 面積
- :
- 44.22坪 (146.18m²)
- 所在地
- :
- 東京都新宿区四谷2-9(以下未定)
- 最寄駅
- :
-
四ツ谷駅まで徒歩5分
四ツ谷駅まで徒歩7分
新宿三丁目駅まで徒歩7分
四ツ谷駅まで徒歩7分
曙橋駅まで徒歩10分
物件情報
所在地・アクセス
- 物件名
- (仮称)四谷2丁目PJ 5階
- 所在地
- 東京都新宿区四谷2-9(以下未定)
- 最寄駅
-
東京メトロ南北線 四ツ谷駅まで徒歩5分
JR中央線快速 四ツ谷駅まで徒歩7分
東京メトロ丸ノ内線 新宿三丁目駅まで徒歩7分
東京メトロ丸ノ内線 四ツ谷駅まで徒歩7分
都営新宿線 曙橋駅まで徒歩10分
賃貸条件
- 賃料(坪単価)
- 相談(@―)
- 礼 金
- 相談
- 共益費(坪単価)
- 相談(@―)
- 面 積
- 44.22坪 (146.18m²)
- 賃料+共益費(坪単価)
- 相談 (@―)
- 償 却
- 相談
- 預託金(保証金/敷金)
- 相談(―)
- 入居可能日
- 相談
- 更新料(再契約料)
- 相談
- 契約期間
- 相談
物件概要
- 特 徴
- 構 造
- 鉄骨造/新耐震
- 物件タイプ
- 事務所
- 規 模
- 10階建
- 取引態様
- 一般媒介
- 竣 工
- 2026年12月竣工予定
- 設 備
-
E V :1基、天井高:―㎜、床仕様:―、空調:―、トイレ:―
- 備 考
- お問い合わせください。
物件情報更新日:2025-11-21
お気軽にお問合せください
現在募集中の区画
- 階数
- 面積
- 賃料
- 共益費
- 間取図
- HOME
- >
- エリアから探す
- >
- 新宿区
- >
- 四谷
- >
- (仮称)四谷2丁目PJ
- >
- (仮称)四谷2丁目PJ 5階
