新耐震
Hi-gs日本橋
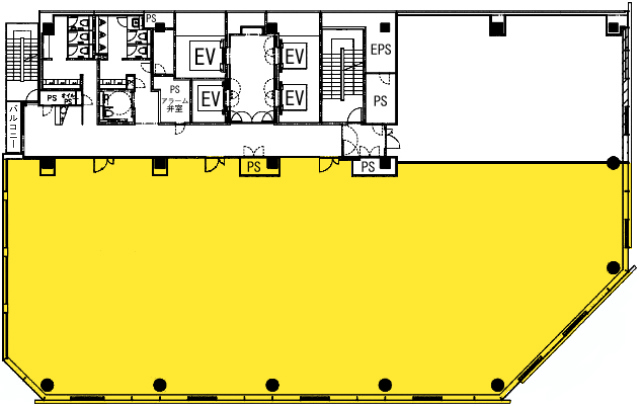
3階(東京都中央区日本橋)
新耐震
Hi-gs日本橋
3階(東京都中央区日本橋)
- 賃料(坪単価):
- 相談(@―)
- 共益費(坪単価)
- :
- 相談 (@―)
- 預託金(保証金/敷金)
- :
- 相談(―)
- 面積
- :
- 173.00坪 (571.92m²)
- 所在地
- :
- 東京都中央区日本橋3-11-2
- 最寄駅
- :
-
日本橋駅まで徒歩5分
宝町駅まで徒歩5分
京橋駅まで徒歩6分
東京駅まで徒歩7分
茅場町駅まで徒歩9分
物件情報
所在地・アクセス
- 物件名
- Hi-gs日本橋 3階
- 所在地
- 東京都中央区日本橋3-11-2
- 最寄駅
-
東京メトロ東西線 日本橋駅まで徒歩5分
都営浅草線 宝町駅まで徒歩5分
東京メトロ銀座線 京橋駅まで徒歩6分
JR山手線 東京駅まで徒歩7分
東京メトロ日比谷線 茅場町駅まで徒歩9分
賃貸条件
- 賃料(坪単価)
- 相談(@―)
- 礼 金
- 相談
- 共益費(坪単価)
- 相談(@―)
- 面 積
- 173.00坪 (571.92m²)
- 賃料+共益費(坪単価)
- 相談 (@―)
- 償 却
- 相談
- 預託金(保証金/敷金)
- 相談(―)
- 入居可能日
- 相談
- 更新料(再契約料)
- 相談
- 契約期間
- 相談
物件概要
- 特 徴
- 構 造
- 鉄骨造・一部鉄骨鉄筋コンクリート造/新耐震
- 物件タイプ
- 店舗
- 規 模
- 地下1階付12階建
- 取引態様
- 一般媒介
- 竣 工
- 2025年6月
- 設 備
-
E V :4基、天井高:3200㎜、床仕様:―、空調:個別空調、トイレ: 男女別 洋式
その他:駐車場設備あり
- 備 考
- お問い合わせください。
物件情報更新日:2025-10-01
お気軽にお問合せください
- HOME
- >
- エリアから探す
- >
- 中央区
- >
- 八重洲・京橋・日本橋
- >
- Hi-gs日本橋
- >
- Hi-gs日本橋 3階
