新耐震
サンセイビル
2階(神奈川県横浜市港北区新横浜)
新耐震
サンセイビル
2階(神奈川県横浜市港北区新横浜)
- 賃料(坪単価):
- 476,190円(@13,000円)
- 共益費(坪単価)
- :
- 賃料に含む (@―)
- 預託金(保証金/敷金)
- :
- 3,333,330円(7ヶ月)
- 面積
- :
- 36.63坪 (121.09m²)
- 所在地
- :
- 神奈川県横浜市港北区新横浜2-3-24
- 最寄駅
- :
-
新横浜駅まで徒歩5分
新横浜駅まで徒歩5分
新横浜駅まで徒歩5分
新横浜駅まで徒歩7分
物件情報
所在地・アクセス
- 物件名
- サンセイビル 2階
- 所在地
- 神奈川県横浜市港北区新横浜2-3-24
- 最寄駅
-
東急新横浜線 新横浜駅まで徒歩5分
横浜市営ブルーライン 新横浜駅まで徒歩5分
相鉄新横浜線 新横浜駅まで徒歩5分
JR横浜線 新横浜駅まで徒歩7分
賃貸条件
- 賃料(坪単価)
- 476,190円(@13,000円)
- 礼 金
- 無
- 共益費(坪単価)
- 賃料に含む(@―)
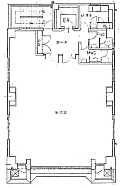
- 面 積
- 36.63坪 (121.09m²)
- 賃料+共益費(坪単価)
- 476,190円 (@13,000円)
- 償 却
- 無
- 預託金(保証金/敷金)
- 3,333,330円(7ヶ月)
- 入居可能日
- 即日
- 更新料(再契約料)
- 無
- 契約期間
- 3年(定借)
物件概要
- 特 徴
- 構 造
- 鉄骨鉄筋コンクリート造/新耐震
- 物件タイプ
- 事務所
- 規 模
- 地下1階付9階建
- 取引態様
- 一般媒介
- 竣 工
- 1987年6月
- 設 備
-
E V :1基(9人乗)、天井高:2400㎜、床仕様:―、空調:個別空調、トイレ:専用 男女別 洋式
その他:機械警備
- 備 考
-
■2023年11月:ビルエントランス、2024年11月:各階EVホール・トイレ・給湯室リニューアル工事完了 ■SFビルサポート株式会社と保証委託契約を締結していただきます。 ※与信状況によって預託金額が変動する場合がございます。
注) 上記の価格には、別途、消費税及び地方消費税が課されます。
消費税率が変更された場合には、以後、変更後の税率が課されることとなります。
物件情報更新日:2026-04-06
お気軽にお問合せください
現在募集中の区画
- 階数
- 面積
- 賃料
- 共益費
- 間取図
