新耐震基準適合
芝公園三丁目ビル
2階(東京都港区芝公園)
新耐震基準適合
芝公園三丁目ビル
2階(東京都港区芝公園)
- 賃料(坪単価):
- 相談(@―)
- 共益費(坪単価)
- :
- 賃料に含む (@―)
- 預託金(保証金/敷金)
- :
- ―(12ヶ月)
- 面積
- :
- 179.69坪 (594.01m²)
- 所在地
- :
- 東京都港区芝公園3-1-38
- 最寄駅
- :
-
御成門駅まで徒歩5分
神谷町駅まで徒歩6分
大門駅まで徒歩14分
大門駅まで徒歩14分
芝公園駅まで徒歩15分
物件情報
所在地・アクセス
- 物件名
- 芝公園三丁目ビル 2階
- 所在地
- 東京都港区芝公園3-1-38
- 最寄駅
-
都営三田線 御成門駅まで徒歩5分
東京メトロ日比谷線 神谷町駅まで徒歩6分
都営浅草線 大門駅まで徒歩14分
都営大江戸線 大門駅まで徒歩14分
都営三田線 芝公園駅まで徒歩15分
賃貸条件
- 賃料(坪単価)
- 相談(@―)
- 礼 金
- 無
- 共益費(坪単価)
- 賃料に含む(@―)
- 面 積
- 179.69坪 (594.01m²)
- 賃料+共益費(坪単価)
- 相談 (@―)
- 償 却
- 無
- 預託金(保証金/敷金)
- ―(12ヶ月)
- 入居可能日
- 2026年4月1日予定
- 更新料(再契約料)
- 無
- 契約期間
- 2年
物件概要
- 特 徴
- 構 造
- 鉄筋コンクリート造/新耐震基準適合
- 物件タイプ
- 事務所
- 規 模
- 6階建
- 取引態様
- 一般媒介
- 竣 工
- 1981年6月
- 設 備
-
E V :2基(15人乗)、天井高:2530㎜、床仕様:OAフロア(H=70mm)、空調:個別空調、トイレ:共用 男女別 洋式
その他:機械警備、駐車場設備あり
- 備 考
-
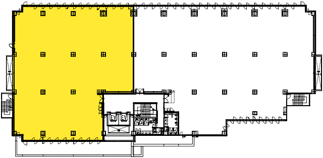
■2009年2月、耐震補強工事実施済 ■床荷重:300㎏/㎡ ■電気容量:60VA/㎡ ※図面着色部分が募集区画となりますが、契約面積と相違する可能性があることを予めご了承ください。
注) 上記の価格には、別途、消費税及び地方消費税が課されます。
消費税率が変更された場合には、以後、変更後の税率が課されることとなります。
物件情報更新日:2026-04-16
お気軽にお問合せください
- HOME
- >
- エリアから探す
- >
- 港区
- >
- 浜松町・芝大門・芝公園
- >
- 芝公園三丁目ビル
- >
- 芝公園三丁目ビル 2階
