新耐震
祐真ビル 本館
9階(東京都渋谷区渋谷)
新耐震
祐真ビル 本館
9階(東京都渋谷区渋谷)
- 賃料(坪単価):
- 4,092,000円(@30,000円)
- 共益費(坪単価)
- :
- 545,600円 (@4,000円)
- 預託金(保証金/敷金)
- :
- 49,104,000円(12ヶ月)
- 面積
- :
- 136.40坪 (450.92m²)
- 所在地
- :
- 東京都渋谷区渋谷3-27-11
- 最寄駅
- :
-
渋谷駅まで徒歩6分
渋谷駅まで徒歩6分
渋谷駅まで徒歩6分
渋谷駅まで徒歩6分
渋谷駅まで徒歩6分
物件情報
所在地・アクセス
- 物件名
- 祐真ビル 本館 9階
- 所在地
- 東京都渋谷区渋谷3-27-11
- 最寄駅
-
JR山手線 渋谷駅まで徒歩6分
東京メトロ副都心線 渋谷駅まで徒歩6分
東急東横線 渋谷駅まで徒歩6分
東京メトロ銀座線 渋谷駅まで徒歩6分
東京メトロ半蔵門線 渋谷駅まで徒歩6分
賃貸条件
- 賃料(坪単価)
- 4,092,000円(@30,000円)
- 礼 金
- 無
- 共益費(坪単価)
- 545,600円(@4,000円)
- 面 積
- 136.40坪 (450.92m²)
- 賃料+共益費(坪単価)
- 4,637,600円 (@34,000円)
- 償 却
- 無
- 預託金(保証金/敷金)
- 49,104,000円(12ヶ月)
- 入居可能日
- 即日
- 更新料(再契約料)
- 相談
- 契約期間
- 2年
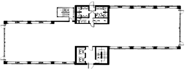
物件概要
- 特 徴
- 構 造
- 鉄骨鉄筋コンクリート造/新耐震
- 物件タイプ
- 事務所
- 規 模
- 地下1階付9階建
- 取引態様
- 一般媒介
- 竣 工
- 1987年9月
- 設 備
-
E V :2基、天井高:2500㎜、床仕様:タイルカーペット、空調:個別空調、トイレ:専用 男女別 洋式
その他:機械警備、駐車場設備あり
- 備 考
-
■解約予告:6ヶ月前 ■ラウンジ・喫煙スペースあり
注) 上記の価格には、別途、消費税及び地方消費税が課されます。
消費税率が変更された場合には、以後、変更後の税率が課されることとなります。
物件情報更新日:2026-02-17
お気軽にお問合せください
