新耐震
香雅堂品川ビル
3階(東京都品川区東品川)
新耐震
香雅堂品川ビル
3階(東京都品川区東品川)
- 賃料(坪単価):
- 593,560円(@22,000円)
- 共益費(坪単価)
- :
- 賃料に含む (@―)
- 預託金(保証金/敷金)
- :
- 3,561,360円(6ヶ月)
- 面積
- :
- 26.98坪 (89.18m²)
- 所在地
- :
- 東京都品川区東品川3-27-17
- 最寄駅
- :
-
品川シーサイド駅まで徒歩5分
青物横丁駅まで徒歩6分
新馬場駅まで徒歩13分
天王洲アイル駅まで徒歩15分
物件情報
所在地・アクセス
- 物件名
- 香雅堂品川ビル 3階
- 所在地
- 東京都品川区東品川3-27-17
- 最寄駅
-
りんかい線 品川シーサイド駅まで徒歩5分
京急本線 青物横丁駅まで徒歩6分
京急本線 新馬場駅まで徒歩13分
りんかい線 天王洲アイル駅まで徒歩15分
賃貸条件
- 賃料(坪単価)
- 593,560円(@22,000円)
- 礼 金
- 無
- 共益費(坪単価)
- 賃料に含む(@―)
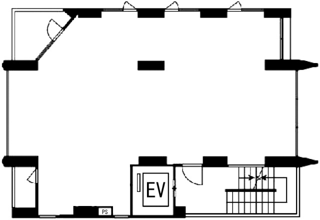
- 面 積
- 26.98坪 (89.18m²)
- 賃料+共益費(坪単価)
- 593,560円 (@22,000円)
- 償 却
- 賃料の1ヶ月分
- 預託金(保証金/敷金)
- 3,561,360円(6ヶ月)
- 入居可能日
- 即日
- 更新料(再契約料)
- 新賃料の1ヶ月分
- 契約期間
- 5年(定借)
物件概要
- 特 徴
- 構 造
- 鉄筋コンクリート造/新耐震
- 物件タイプ
- 店舗・事務所
- 規 模
- 地下1階付5階建
- 取引態様
- 一般媒介
- 竣 工
- 2025年6月
- 設 備
-
E V :1基、天井高:2510㎜、床仕様:―、空調:―、トイレ:―
- 備 考
-
■スケルトン渡し ■軽飲食店舗相談可能 ■貸主指定の火災保険にご加入いただきます。 ■貸主指定の保証会社(全保連)と保証委託契約を締結していただきます。
注) 上記の価格には、別途、消費税及び地方消費税が課されます。
消費税率が変更された場合には、以後、変更後の税率が課されることとなります。
物件情報更新日:2025-12-09
お気軽にお問合せください
現在募集中の区画
- 階数
- 面積
- 賃料
- 共益費
- 間取図
