当社貸主物件
新耐震
Biz Feel Ichigaya (旧:ツボヤビル)
1階B室(東京都千代田区九段南)
当社貸主物件
新耐震
Biz Feel Ichigaya (旧:ツボヤビル)
1階B室(東京都千代田区九段南)
- 賃料(坪単価):
- 260,120円(@28,000円)
- 共益費(坪単価)
- :
- 賃料に含む (@―)
- 預託金(保証金/敷金)
- :
- 1,560,720円(6ヶ月)
- 面積
- :
- 9.29坪 (30.73m²)
- 所在地
- :
- 東京都千代田区九段南4-7-19
- 最寄駅
- :
-
市ヶ谷駅まで徒歩1分
市ヶ谷駅まで徒歩1分
市ヶ谷駅まで徒歩1分
市ヶ谷駅まで徒歩4分
半蔵門駅まで徒歩9分
スタッフコメント
東京メトロ・都営新宿線【市ヶ谷駅】A3出口から徒歩1分とアクセス良好な立地に、セットアップオフィスが誕生いたします。2階は原状回復義務無し(原状変更した場合や破損等を除く)・敷金無しでの入退去が可能なため、移転にかかるイニシャルコストを大幅に削減することが可能です。また、当社貸主物件のため、仲介手数料も発生いたしません。内装は、2階は会議室2室にテレカンブース、ラウンジスペースに加え、執務室にもすべて什器を設置予定です。5+6階はメゾネットタイプのSOHO物件で、ラウンジやルーフバルコニーが設置されております。コンパクトな空間を上手く利用した無駄のないレイアウト、遊び心溢れるおしゃれなオフィスデザインで、テナント様の出社意欲を促します。快適なオフィス空間で、テナント様のビジネスの成功をサポートいたします。ぜひ一度ご内覧ください!
担当:関谷 佳奈 支店:麹町店 更新日:2026年4月14日
物件情報
所在地・アクセス
- 物件名
- Biz Feel Ichigaya (旧:ツボヤビル) 1階B室
- 所在地
- 東京都千代田区九段南4-7-19
- 最寄駅
-
都営新宿線 市ヶ谷駅まで徒歩1分
東京メトロ有楽町線 市ヶ谷駅まで徒歩1分
東京メトロ南北線 市ヶ谷駅まで徒歩1分
JR中央線 市ヶ谷駅まで徒歩4分
東京メトロ半蔵門線 半蔵門駅まで徒歩9分
賃貸条件
- 賃料(坪単価)
- 260,120円(@28,000円)
- 礼 金
- 無
- 共益費(坪単価)
- 賃料に含む(@―)
- 面 積
- 9.29坪 (30.73m²)
- 賃料+共益費(坪単価)
- 260,120円 (@28,000円)
- 償 却
- 無
- 預託金(保証金/敷金)
- 1,560,720円(6ヶ月)
- 入居可能日
- 相談
- 更新料(再契約料)
- 無
- 契約期間
- 2年
物件概要
- 特 徴
- 構 造
- 鉄筋コンクリート造/新耐震
- 物件タイプ
- 店舗
- 規 模
- 6階建
- 取引態様
- 貸主
- 竣 工
- 1985年11月
- 設 備
-
E V :1基、天井高:―㎜、床仕様:―、空調:―、トイレ:―
- 備 考
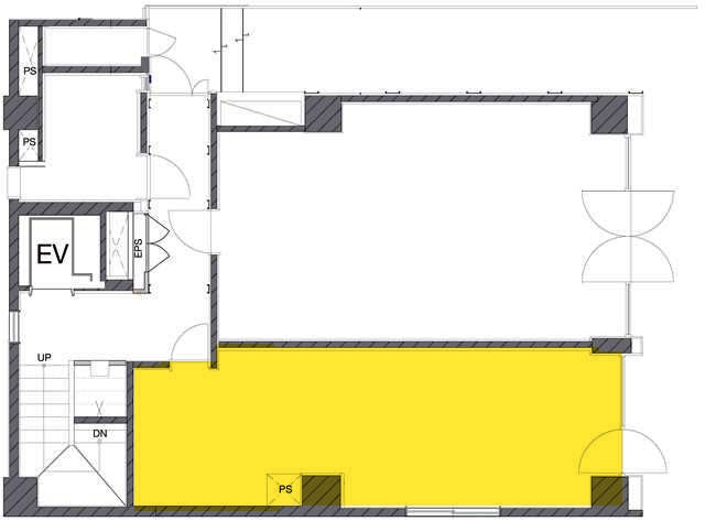
-
※図面着色部分が募集区画となりますが、契約面積と相違する可能性があることを予めご了承ください。 ■2026年4月、エントランス・共用部等リニューアル工事完了予定 ■スケルトン渡し ■SFビルサポート株式会社と保証委託契約を締結していただきます。※与信状況によって敷金の預託をお願いする場合がございます。
注) 上記の価格には、別途、消費税及び地方消費税が課されます。
消費税率が変更された場合には、以後、変更後の税率が課されることとなります。
物件情報更新日:2026-04-13
お気軽にお問合せください
現在募集中の区画
- 階数
- 面積
- 賃料
- 共益費
- 間取図
- HOME
- >
- エリアから探す
- >
- 千代田区
- >
- 市ヶ谷・番町・麹町
- >
- Biz Feel Ichigaya (旧:ツボヤビル)
- >
- Biz Feel Ichigaya (旧:ツボヤビル) 1階B室
