新耐震
パリスビル
3階(東京都千代田区富士見)
新耐震
パリスビル
3階(東京都千代田区富士見)
- 賃料(坪単価):
- 190,600円(@10,000円)
- 共益費(坪単価)
- :
- 30,000円 (@―)
- 預託金(保証金/敷金)
- :
- 1,143,600円(6ヶ月)
- 面積
- :
- 19.06坪 (63.03m²)
- 所在地
- :
- 東京都千代田区富士見1-7-10
- 最寄駅
- :
-
飯田橋駅まで徒歩5分
飯田橋駅まで徒歩5分
飯田橋駅まで徒歩5分
九段下駅まで徒歩9分
水道橋駅まで徒歩10分
物件情報
所在地・アクセス
- 物件名
- パリスビル 3階
- 所在地
- 東京都千代田区富士見1-7-10
- 最寄駅
-
東京メトロ東西線 飯田橋駅まで徒歩5分
都営大江戸線 飯田橋駅まで徒歩5分
東京メトロ東西線 飯田橋駅まで徒歩5分
東京メトロ半蔵門線 九段下駅まで徒歩9分
JR中央線 水道橋駅まで徒歩10分
賃貸条件
- 賃料(坪単価)
- 190,600円(@10,000円)
- 礼 金
- 無
- 共益費(坪単価)
- 30,000円(@―)
- 面 積
- 19.06坪 (63.03m²)
- 賃料+共益費(坪単価)
- 220,600円 (@10,000円)
- 償 却
- 賃料の2ヶ月分
- 預託金(保証金/敷金)
- 1,143,600円(6ヶ月)
- 入居可能日
- 即日
- 更新料(再契約料)
- 新賃料の1ヶ月分
- 契約期間
- 2年
物件概要
- 特 徴
-
- 構 造
- 鉄筋コンクリート造/新耐震
- 物件タイプ
- 事務所
- 規 模
- 5階建
- 取引態様
- 一般媒介
- 竣 工
- 1986年8月
- 設 備
-
天井高:2300㎜、床仕様:タイルカーペット、空調:個別空調、トイレ:専用 男女共用 洋式
その他:機械警備
- 備 考
-
■貸主指定の火災保険にご加入いただきます。 ■SFビルサポート株式会社と保証委託契約を締結していただきます。 ※与信状況によって預託金額が変動する場合がございます。
注) 上記の価格には、別途、消費税及び地方消費税が課されます。
消費税率が変更された場合には、以後、変更後の税率が課されることとなります。
物件情報更新日:2025-11-06
お気軽にお問合せください
現在募集中の区画
- 階数
- 面積
- 賃料
- 共益費
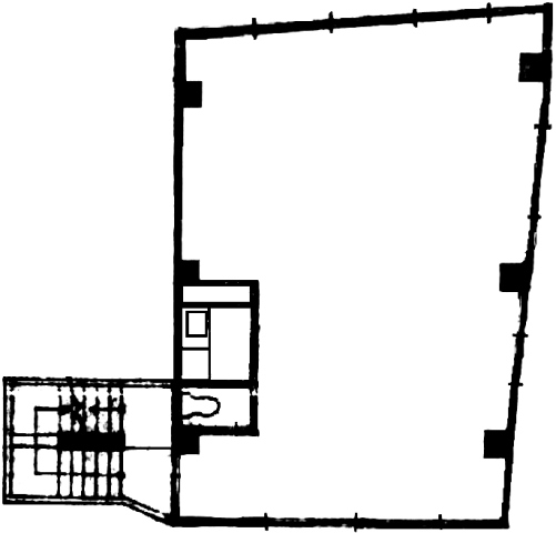
- 間取図
