当社管理物件
新耐震
(仮称)新宿区四谷一丁目計画
10階(東京都新宿区四谷)
当社管理物件
新耐震
(仮称)新宿区四谷一丁目計画
10階(東京都新宿区四谷)
- 賃料(坪単価):
- 相談(@―)
- 共益費(坪単価)
- :
- 賃料に含む (@―)
- 預託金(保証金/敷金)
- :
- ―(6ヶ月)
- 面積
- :
- 68.27坪 (225.71m²)
- 所在地
- :
- 東京都新宿区四谷1-3
- 最寄駅
- :
-
四ツ谷駅まで徒歩1分
四ツ谷駅まで徒歩2分
四ツ谷駅まで徒歩2分
麹町駅まで徒歩11分
市ヶ谷駅まで徒歩13分
スタッフコメント
(仮称)新宿区四谷一丁目計画は、JR中央快速線【四ツ谷駅】徒歩2分という都心屈指の好立地に誕生する、地上10階建・2026年9月竣工予定の新築複合ビルです。新宿通り沿いの視認性に優れた立地で、1・2階は店舗、3・4・5階はクリニックなどに適した診療所、6~10階は利便性を兼ね備えたオフィス区画として計画されています。個別空調(6~10階)・OAフロア(6~10階)・機械警備・EV2基など最新設備を備え、店舗は集客力、オフィスは快適性と働きやすさを両立。用途に合わせて選べる新築区画で、オフィス・クリニックの開設・移転を後押しします。条件や詳細についてお気軽にご相談ください。
担当:佐竹 七海 支店:新宿店 更新日:2026年5月2日
物件情報
所在地・アクセス
- 物件名
- (仮称)新宿区四谷一丁目計画 10階
- 所在地
- 東京都新宿区四谷1-3
- 最寄駅
-
東京メトロ南北線 四ツ谷駅まで徒歩1分
JR中央線快速 四ツ谷駅まで徒歩2分
東京メトロ丸ノ内線 四ツ谷駅まで徒歩2分
東京メトロ有楽町線 麹町駅まで徒歩11分
都営新宿線 市ヶ谷駅まで徒歩13分
賃貸条件
- 賃料(坪単価)
- 相談(@―)
- 礼 金
- 賃料の1ヶ月分
- 共益費(坪単価)
- 賃料に含む(@―)
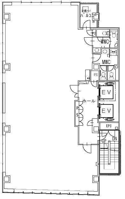
- 面 積
- 68.27坪 (225.71m²)
- 賃料+共益費(坪単価)
- 相談 (@―)
- 償 却
- 無
- 預託金(保証金/敷金)
- ―(6ヶ月)
- 入居可能日
- 2026年10月予定
- 更新料(再契約料)
- 新賃料の1ヶ月分
- 契約期間
- 2年
物件概要
- 特 徴
- 構 造
- 鉄骨造/新耐震
- 物件タイプ
- 事務所
- 規 模
- 10階建
- 取引態様
- 専任媒介
- 竣 工
- 2026年9月竣工予定
- 設 備
-
E V :2基、天井高:2700㎜、床仕様:OAフロア敷設予定、空調:個別空調、トイレ:専用 男女別 洋式
その他:機械警備、EV不停止機能付、駐車場設備あり
- 備 考
-
※建設中のため、契約面積や設備等変更となる可能性がございますので、予めご了承ください。 ■貸室面積には、EVホール・トイレ・給湯室の面積が含まれます。 ■SFビルサポート株式会社と保証委託契約を締結していただきます。 ※与信状況によって預託金額が変動する場合がございます。
注) 上記の価格には、別途、消費税及び地方消費税が課されます。
消費税率が変更された場合には、以後、変更後の税率が課されることとなります。
物件情報更新日:2026-05-01
お気軽にお問合せください
現在募集中の区画
- 階数
- 面積
- 賃料
- 共益費
- 間取図
- HOME
- >
- エリアから探す
- >
- 新宿区
- >
- 四谷
- >
- (仮称)新宿区四谷一丁目計画
- >
- (仮称)新宿区四谷一丁目計画 10階
