新耐震
ダイアンクレストビル
1階(東京都渋谷区神南)
新耐震
ダイアンクレストビル
1階(東京都渋谷区神南)
- 賃料(坪単価):
- 2,282,400円(@120,000円)
- 共益費(坪単価)
- :
- 80,000円 (@―)
- 預託金(保証金/敷金)
- :
- ―(税込賃料の10ヶ月分)
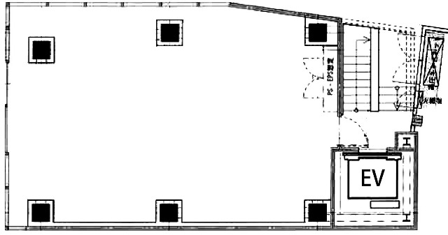
- 面積
- :
- 19.02坪 (62.86m²)
- 所在地
- :
- 東京都渋谷区神南1-15(以下未定)
- 最寄駅
- :
-
渋谷駅まで徒歩7分
渋谷駅まで徒歩7分
渋谷駅まで徒歩7分
渋谷駅まで徒歩7分
渋谷駅まで徒歩8分
物件情報
所在地・アクセス
- 物件名
- ダイアンクレストビル 1階
- 所在地
- 東京都渋谷区神南1-15(以下未定)
- 最寄駅
-
東京メトロ半蔵門線 渋谷駅まで徒歩7分
東京メトロ副都心線 渋谷駅まで徒歩7分
東急東横線 渋谷駅まで徒歩7分
東急田園都市線 渋谷駅まで徒歩7分
JR山手線 渋谷駅まで徒歩8分
賃貸条件
- 賃料(坪単価)
- 2,282,400円(@120,000円)
- 礼 金
- 賃料の2ヶ月分
- 共益費(坪単価)
- 80,000円(@―)
- 面 積
- 19.02坪 (62.86m²)
- 賃料+共益費(坪単価)
- 2,362,400円 (@120,000円)
- 償 却
- 保証金の20%
- 預託金(保証金/敷金)
- ―(税込賃料の10ヶ月分)
- 入居可能日
- 相談
- 更新料(再契約料)
- 新賃料の1ヶ月分
- 契約期間
- 3年
物件概要
- 特 徴
- 構 造
- 鉄骨造/新耐震
- 物件タイプ
- 店舗
- 規 模
- 8階建
- 取引態様
- 一般媒介
- 竣 工
- 2026年12月竣工予定
- 設 備
-
E V :1基(9人乗)、天井高:―㎜、床仕様:―、空調:―、トイレ:―
- 備 考
-
■スケルトン渡し ■内装監理費:賃料の1ヶ月分 ■貸主指定の火災保険にご加入いただきます。 ■貸主指定の保証会社と保証委託契約を締結していただきます。
注) 上記の価格には、別途、消費税及び地方消費税が課されます。
消費税率が変更された場合には、以後、変更後の税率が課されることとなります。
物件情報更新日:2025-09-29
お気軽にお問合せください
現在募集中の区画
- 階数
- 面積
- 賃料
- 共益費
- 間取図
- HOME
- >
- エリアから探す
- >
- 渋谷区
- >
- 宇田川町・道玄坂
- >
- ダイアンクレストビル
- >
- ダイアンクレストビル 1階
