新耐震
Kタワー横浜
19階(神奈川県横浜市西区みなとみらい)
新耐震
Kタワー横浜
19階(神奈川県横浜市西区みなとみらい)
- 賃料(坪単価):
- 6,274,400円(@22,000円)
- 共益費(坪単価)
- :
- 無 (@―)
- 預託金(保証金/敷金)
- :
- 62,744,000円(10ヶ月)
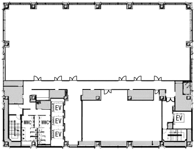
- 面積
- :
- 285.20坪 (942.81m²)
- 所在地
- :
- 神奈川県横浜市西区みなとみらい6-2-12
- 最寄駅
- :
-
新高島駅まで徒歩5分
横浜駅まで徒歩12分
横浜駅まで徒歩12分
横浜駅まで徒歩12分
みなとみらい駅まで徒歩12分
物件情報
所在地・アクセス
- 物件名
- Kタワー横浜 19階
- 所在地
- 神奈川県横浜市西区みなとみらい6-2-12
- 最寄駅
-
横浜高速鉄道みなとみらい線 新高島駅まで徒歩5分
JR京浜東北線 横浜駅まで徒歩12分
JR東海道線 横浜駅まで徒歩12分
東急東横線 横浜駅まで徒歩12分
横浜高速鉄道みなとみらい線 みなとみらい駅まで徒歩12分
賃貸条件
- 賃料(坪単価)
- 6,274,400円(@22,000円)
- 礼 金
- 無
- 共益費(坪単価)
- 無(@―)
- 面 積
- 285.20坪 (942.81m²)
- 賃料+共益費(坪単価)
- 6,274,400円 (@22,000円)
- 償 却
- 無
- 預託金(保証金/敷金)
- 62,744,000円(10ヶ月)
- 入居可能日
- 2026年4月1日予定
- 更新料(再契約料)
- 無
- 契約期間
- 2年
物件概要
- 特 徴
- 構 造
- 鉄骨造/新耐震
- 物件タイプ
- 事務所
- 規 模
- 21階建
- 取引態様
- 一般媒介
- 竣 工
- 2023年7月
- 設 備
-
E V :6基、天井高:2800㎜、床仕様:OAフロア(H=100mm)、空調:セントラル、トイレ: 男女別 洋式
その他:機械警備、駐車場設備あり
- 備 考
-
■床荷重:一部800㎏/㎡
注) 上記の価格には、別途、消費税及び地方消費税が課されます。
消費税率が変更された場合には、以後、変更後の税率が課されることとなります。
物件情報更新日:2025-12-26
お気軽にお問合せください
現在募集中の区画
- 階数
- 面積
- 賃料
- 共益費
- 間取図
- HOME
- >
- エリアから探す
- >
- 横浜エリア
- >
- 横浜市西区・神奈川区
- >
- Kタワー横浜
- >
- Kタワー横浜 19階
