当社貸主物件
新耐震
CADRE tamachi (キャドレ 田町)
3階(東京都港区芝浦)
当社貸主物件
新耐震
CADRE tamachi (キャドレ 田町)
3階(東京都港区芝浦)
- 賃料(坪単価):
- 917,600円(@31,000円)
- 共益費(坪単価)
- :
- 賃料に含む (@―)
- 預託金(保証金/敷金)
- :
- 5,505,600円(6ヶ月)
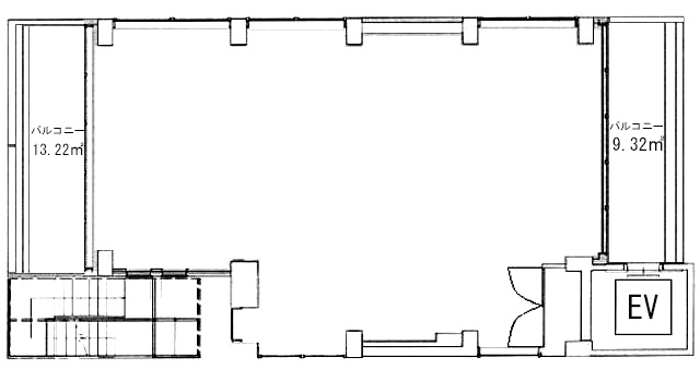
- 面積
- :
- 29.60坪 (97.88m²)
- 所在地
- :
- 東京都港区芝浦3-6-12
- 最寄駅
- :
-
田町駅まで徒歩5分
田町駅まで徒歩5分
三田駅まで徒歩8分
三田駅まで徒歩8分
芝浦ふ頭駅まで徒歩9分
スタッフコメント
2026年2月竣工のセットアップオフィス!3階~7階のセットアップ区画は、敷金は指定保証会社の利用で無になります。(現状変更した場合や破損等を除きます。)また、7階は什器付の区画となっておりますので、初期費用を抑えてご入居されたいお客様へオススメめのオフィスとなっております。1階~3階は重飲食可能な店舗区画となっております。 業種の相談も可能でございますので、お気軽にご連絡ください。ご内覧お待ちしております!
担当:吉田 虹大 支店:浜松町店 更新日:2026年3月5日
物件情報
所在地・アクセス
- 物件名
- CADRE tamachi (キャドレ 田町) 3階
- 所在地
- 東京都港区芝浦3-6-12
- 最寄駅
-
JR山手線 田町駅まで徒歩5分
JR京浜東北線 田町駅まで徒歩5分
都営三田線 三田駅まで徒歩8分
都営浅草線 三田駅まで徒歩8分
ゆりかもめ 芝浦ふ頭駅まで徒歩9分
賃貸条件
- 賃料(坪単価)
- 917,600円(@31,000円)
- 礼 金
- 無
- 共益費(坪単価)
- 賃料に含む(@―)
- 面 積
- 29.60坪 (97.88m²)
- 賃料+共益費(坪単価)
- 917,600円 (@31,000円)
- 償 却
- 無
- 預託金(保証金/敷金)
- 5,505,600円(6ヶ月)
- 入居可能日
- 即日
- 更新料(再契約料)
- 新賃料の1ヶ月分
- 契約期間
- 5年(定借)
物件概要
- 特 徴
- 構 造
- 鉄筋コンクリート造/新耐震
- 物件タイプ
- 店舗
- 規 模
- 8階建
- 取引態様
- 一般媒介
- 竣 工
- 2026年2月
- 設 備
-
E V :1基、天井高:3400㎜、床仕様:―、空調:―、トイレ:―
その他:機械警備、EV不停止機能付
- 備 考
-
■スケルトン渡し ■重飲食店舗可能 ■床荷重290kg/㎡ 電灯250VA/㎡ 厨房動力150VA/㎡ ■貸主指定の保証会社(スターリンク)と保証委託契約を締結していただきます。 ※与信状況によって保証金の預託をお願いする場合がございます。
注) 上記の価格には、別途、消費税及び地方消費税が課されます。
消費税率が変更された場合には、以後、変更後の税率が課されることとなります。
物件情報更新日:2026-03-04
お気軽にお問合せください
現在募集中の区画
- 階数
- 面積
- 賃料
- 共益費
- 間取図
- HOME
- >
- エリアから探す
- >
- 港区
- >
- 芝浦・海岸
- >
- CADRE tamachi (キャドレ 田町)
- >
- CADRE tamachi (キャドレ 田町) 3階
