新耐震
共同印刷株式会社 本社ビル
3階(東京都文京区小石川)
新耐震
共同印刷株式会社 本社ビル
3階(東京都文京区小石川)
- 賃料(坪単価):
- 7,260,000円(@22,000円)
- 共益費(坪単価)
- :
- 賃料に含む (@―)
- 預託金(保証金/敷金)
- :
- 87,120,000円(12ヶ月)
- 面積
- :
- 330.00坪 (1090.91m²)
- 所在地
- :
- 東京都文京区小石川4-14-12
- 最寄駅
- :
-
茗荷谷駅まで徒歩12分
白山駅まで徒歩12分
春日駅まで徒歩15分
物件情報
所在地・アクセス
- 物件名
- 共同印刷株式会社 本社ビル 3階
- 所在地
- 東京都文京区小石川4-14-12
- 最寄駅
-
東京メトロ丸ノ内線 茗荷谷駅まで徒歩12分
都営三田線 白山駅まで徒歩12分
都営大江戸線 春日駅まで徒歩15分
賃貸条件
- 賃料(坪単価)
- 7,260,000円(@22,000円)
- 礼 金
- 無
- 共益費(坪単価)
- 賃料に含む(@―)
- 面 積
- 330.00坪 (1090.91m²)
- 賃料+共益費(坪単価)
- 7,260,000円 (@22,000円)
- 償 却
- 無
- 預託金(保証金/敷金)
- 87,120,000円(12ヶ月)
- 入居可能日
- 相談
- 更新料(再契約料)
- 無
- 契約期間
- 3年(定借)
物件概要
- 特 徴
- 構 造
- 鉄筋コンクリート造(一部鉄骨造)/新耐震
- 物件タイプ
- 事務所
- 規 模
- 7階建
- 取引態様
- 一般媒介
- 竣 工
- 2022年3月
- 設 備
-
E V :あり、天井高:2900㎜、床仕様:OAフロア、空調:セントラル、トイレ:共用
その他:駐車場設備あり
- 備 考
-
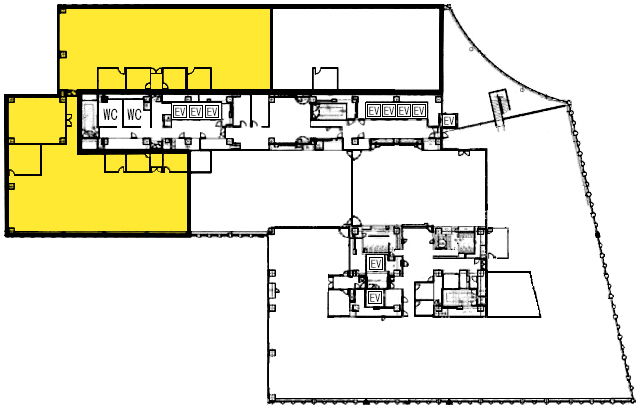
■引渡し:現況有姿(事務所居抜き) ■Wi-Fi利用料は、賃料に含まれます。 ※図面着色部分が募集区画となりますが、契約面積と相違する可能性があることを予めご了承ください。
注) 上記の価格には、別途、消費税及び地方消費税が課されます。
消費税率が変更された場合には、以後、変更後の税率が課されることとなります。
物件情報更新日:2025-11-05
お気軽にお問合せください
現在募集中の区画
- 階数
- 面積
- 賃料
- 共益費
- 間取図
- HOME
- >
- エリアから探す
- >
- 文京区
- >
- 文京区その他
- >
- 共同印刷株式会社 本社ビル
- >
- 共同印刷株式会社 本社ビル 3階
