新耐震
文芸社新宿御苑ビル (旧:サンサーラ第5御苑ビル)
6階(東京都新宿区新宿)
新耐震
文芸社新宿御苑ビル (旧:サンサーラ第5御苑ビル)
6階(東京都新宿区新宿)
- 賃料(坪単価):
- 1,159,050円(@15,000円)
- 共益費(坪単価)
- :
- 309,080円 (@4,000円)
- 預託金(保証金/敷金)
- :
- 11,590,500円(10ヶ月)
- 面積
- :
- 77.27坪 (255.44m²)
- 所在地
- :
- 東京都新宿区新宿1-11-7
- 最寄駅
- :
-
新宿御苑前駅まで徒歩3分
新宿三丁目駅まで徒歩9分
新宿三丁目駅まで徒歩11分
新宿駅まで徒歩15分
新宿駅まで徒歩15分
物件情報
所在地・アクセス
- 物件名
- 文芸社新宿御苑ビル (旧:サンサーラ第5御苑ビル) 6階
- 所在地
- 東京都新宿区新宿1-11-7
- 最寄駅
-
東京メトロ丸ノ内線 新宿御苑前駅まで徒歩3分
都営新宿線 新宿三丁目駅まで徒歩9分
東京メトロ副都心線 新宿三丁目駅まで徒歩11分
JR山手線 新宿駅まで徒歩15分
JR中央線 新宿駅まで徒歩15分
賃貸条件
- 賃料(坪単価)
- 1,159,050円(@15,000円)
- 礼 金
- 賃料の1ヶ月分
- 共益費(坪単価)
- 309,080円(@4,000円)
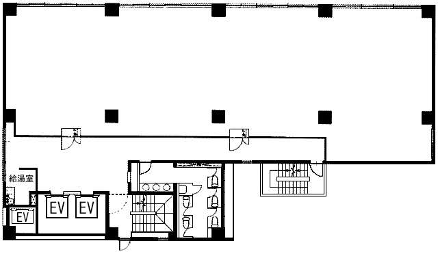
- 面 積
- 77.27坪 (255.44m²)
- 賃料+共益費(坪単価)
- 1,468,130円 (@19,000円)
- 償 却
- 無
- 預託金(保証金/敷金)
- 11,590,500円(10ヶ月)
- 入居可能日
- 即日
- 更新料(再契約料)
- ―
- 契約期間
- 定借
物件概要
- 特 徴
- 構 造
- 鉄骨鉄筋コンクリート造/新耐震
- 物件タイプ
- 事務所
- 規 模
- 8階建
- 取引態様
- 一般媒介
- 竣 工
- 1986年3月
- 設 備
-
E V :あり、天井高:2430㎜、床仕様:OAフロア、空調:個別空調、トイレ:共用 男女別 洋式
- 備 考
-
■契約期間:2033年3月末日までの定期建物賃貸借契約となります。 ■再契約不可 ■管理費:月額1,000円/坪 ■貸室面積には、EVホール・廊下・トイレ・給湯室等の面積は含まれません。 ■トイレ⇒3・6階女子トイレ、4・5・7階男子トイレ
注) 上記の価格には、別途、消費税及び地方消費税が課されます。
消費税率が変更された場合には、以後、変更後の税率が課されることとなります。
物件情報更新日:2026-04-10
お気軽にお問合せください
現在募集中の区画
- 階数
- 面積
- 賃料
- 共益費
- 間取図
- HOME
- >
- エリアから探す
- >
- 新宿区
- >
- 新宿・歌舞伎町・新宿御苑
- >
- 文芸社新宿御苑ビル (旧:サンサーラ第5御苑ビル)
- >
- 文芸社新宿御苑ビル (旧:サンサーラ第5御苑ビル) 6階
