当社管理物件
キャンペーン実施中
新耐震
フレックス三軒茶屋
2階(東京都世田谷区上馬)
当社管理物件
キャンペーン実施中
新耐震
フレックス三軒茶屋
2階(東京都世田谷区上馬)
- 賃料(坪単価):
- 770,880円(@16,000円)
- 共益費(坪単価)
- :
- 賃料に含む (@―)
- 預託金(保証金/敷金)
- :
- 2,312,640円(3ヶ月)
- 面積
- :
- 48.18坪 (159.30m²)
- 所在地
- :
- 東京都世田谷区上馬2-25-4
- 最寄駅
- :
-
三軒茶屋駅まで徒歩9分
駒沢大学駅まで徒歩10分
スタッフコメント
玉川通り沿いに位置する当物件は、幹線道路に面した立地ならではの高い視認性を有するオフィスビルです。車両・歩行者双方から認識しやすく、来訪者への案内もしやすい点が特長です。エントランス及びEVホールは、2025年12月にリニューアル工事が完了しており、落ち着きのあるデザインと清潔感を備えた空間へと刷新されました。築年数を感じさせない共用部は、日常的な利用においても快適性を高めています。共用部はシンプルかつ実用性を重視した構成となっており、管理状態も良好。業種を問わず利用しやすいオフィスビルです。交通アクセスは、東急田園都市線【三軒茶屋駅】が最寄り駅となります。渋谷方面へのアクセスに優れているほか、物件至近にバス停があり、バス利用による移動も可能です。玉川通り沿いという立地特性から、車移動との相性も良い環境となっています。視認性・共用部の刷新・実用性を重視される企業様に適した物件です。
担当:小出 大 支店:渋谷店 更新日:2026年5月8日
物件情報
所在地・アクセス
- 物件名
- フレックス三軒茶屋 2階
- 所在地
- 東京都世田谷区上馬2-25-4
- 最寄駅
-
東急田園都市線 三軒茶屋駅まで徒歩9分
東急田園都市線 駒沢大学駅まで徒歩10分
賃貸条件
- 賃料(坪単価)
- 770,880円(@16,000円)
- 礼 金
- 無
- 共益費(坪単価)
- 賃料に含む(@―)
- 面 積
- 48.18坪 (159.30m²)
- 賃料+共益費(坪単価)
- 770,880円 (@16,000円)
- 償 却
- 無
- 預託金(保証金/敷金)
- 2,312,640円(3ヶ月)
- 入居可能日
- 即日
- 更新料(再契約料)
- 新賃料の1ヶ月分
- 契約期間
- 2年
物件概要
- 特 徴
- 構 造
- 鉄筋コンクリート造/新耐震
- 物件タイプ
- 事務所
- 規 模
- 7階建
- 取引態様
- 一般媒介
- 竣 工
- 1990年8月
- 設 備
-
E V :1基(9人乗)、天井高:2500㎜、床仕様:タイルカーペット、空調:個別空調、トイレ:専用 男女別 洋式
その他:機械警備
- 備 考
-
■2025年12月下旬、エントランス・洗面所・トイレ・給湯室リニューアル実施済 ■電気温水洗浄器付トイレ ■エントランス開放時間:全日6:00~22:00 ※左記時間帯以外はセキュリティカード利用により入退館可能 ■貸主指定の保証会社と保証委託契約を締結していただきます。
注) 上記の価格には、別途、消費税及び地方消費税が課されます。
消費税率が変更された場合には、以後、変更後の税率が課されることとなります。
物件情報更新日:2026-05-07
お気軽にお問合せください
キャンペーン実施中。詳細はお問合せ下さい。
この物件のお問合せ現在募集中の区画
- 階数
- 面積
- 賃料
- 共益費
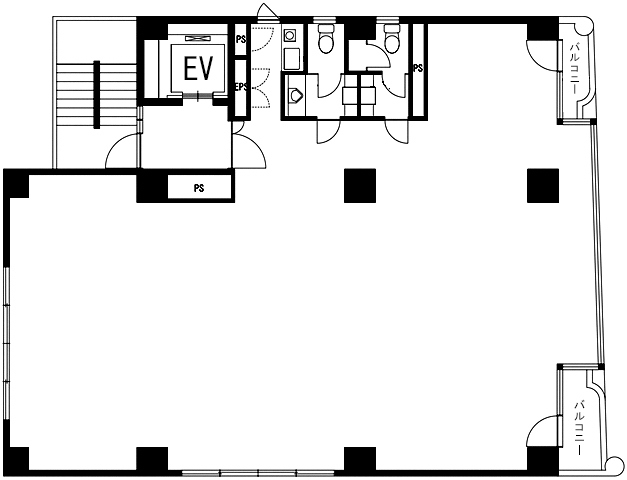
- 間取図
